
BRALE Bau GmbH
Herr M. Brandenburg
Kontaktiere den Anbieter schriftlich, es ist keine Telefonnummer hinterlegt.
Preise & Kosten
Kaution
4200
Warum sehe ich diese Anzeige? – Du siehst diese Anzeige basierend auf Ihrer Navigation auf unserer Website und den Suchkriterien, die du verwendet hast.
Lage
Etwa 15 km hinter der Berliner Stadtgrenze und rund 40 km vom Alexanderplatz entfernt liegt die beliebte Gemeinde Bestensee im Landkreis Dahme-Spreewald. In den vergangenen Jahren verzeichnete Bestensee einen deutlichen Zuzug und wird sich voraussichtlich in den kommenden Jahren auf über 10.000 Einwohner entwickeln. Durch die...
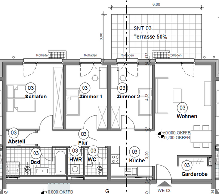
Die Wohnung
Wohnungslage
Erdgeschoss
Bezug
sofort
Wohnanlage
Energie & Heizung
Warum sehe ich diese Anzeige? – Du siehst diese Anzeige basierend auf Ihrer Navigation auf unserer Website und den Suchkriterien, die du verwendet hast.
Energieausweistyp
Bedarfsausweis
Weitere Energiedaten
Energieträger
Elektro
Heizungsart
Fußbodenheizung, Luft-/Wasser-Wärmepumpe, Zentralheizung
Details
Objektbeschreibung
Diese freundliche, neuwertige Wohnung überzeugt durch ihre gehobene Ausstattung und ein modernes Wohnambiente. Neben vier gut geschnittenen Zimmern steht Ihnen ein separates Gäste-WC zur Verfügung. Die Wohnung befindet sich in einem 2024 neu erbauten Haus und ist somit ein Erstbezug.
Beheizt wird die Wohnung über eine...
Ausstattung
Die Wohnung verfügt über eine moderne Einbauküche sowie hochwertiges Holzparkett. In allen Räumen sorgt eine Fußbodenheizung für angenehmen Wohnkomfort. Die Bäder sind mit hochwertigen Fliesen und Sanitäreinrichtungen namhafter Hersteller ausgestattet; als besonderes Highlight bieten sie bodengleiche Duschen.
Zusätzlich...
Anbieter der Immobilie
BRALE Bau GmbH
Dresdener Straße 38, 06895 Zahna-Elster
Herr M. Brandenburg
Dein Ansprechpartner
Kontaktiere den Anbieter schriftlich, es ist keine Telefonnummer hinterlegt.
Online-ID: 2nefn5e
Finde Angebote wie dieses
Hier geht es zu unserem Impressum, den Allgemeinen Geschäftsbedingungen, den Hinweisen zum Datenschutz und nutzungsbasierter Online-Werbung.