
PLAZA IMMOBILIEN
Frau Sylvia Blume
030 ···
Nr. anzeigenPreise & Kosten
zzgl. Nebenkosten
Warum sehe ich diese Anzeige? – Du siehst diese Anzeige basierend auf Ihrer Navigation auf unserer Website und den Suchkriterien, die du verwendet hast.
Lage
Höchste Wertstabilität ist der klingende Begriff für Berlin-Dahlem. In diesem exquisiten und grünem Wohnumfeld befinden sich extrem gefragte Wohnimmobilien. Besonders Paare, Senioren und Familien schätzen den Ortsteil und Wohnungen mit eigenen Garten sind besonders rar.
Entdecken Sie die zahlreichen Möglichkeiten im...
Das Haus
Kategorie
Doppelhaushälfte
Baujahr
2014
Bezug
Ab 01.06.2026
Energie & Heizung
Warum sehe ich diese Anzeige? – Du siehst diese Anzeige basierend auf Ihrer Navigation auf unserer Website und den Suchkriterien, die du verwendet hast.
Energieausweistyp
Verbrauchsausweis
Gebäudetyp
Wohngebäude
Wesentliche Energieträger
Erdwärme
Effizienzklasse
A
Weitere Energiedaten
Energieträger
Erdwärme
Heizungsart
Fußbodenheizung, offener Kamin
Details
Objektbeschreibung
Diese attraktive Doppelhaushälfte zur Miete ist ein ideales Zuhause für anspruchsvolle Mieter, die Komfort und Eleganz schätzen. Mit einer Wohnfläche von 162,6 m² und einem großzügigen Grundstück von 280 m² bietet dieses Objekt ausreichend Platz für Familien oder Paare, die Wert auf geräumiges Wohnen legen.
Die...
Ausstattung
- Einbauküche
- direkte Seenähe
- vollunterkellert
- direkter Zugang zur Tiefgarage vom Haus
- 1 Tiefgaragenstellplatz
- große Terrasse
- großer Atrium im Obergeschoss
- Kamin
- Parkett
- Alarmanlage
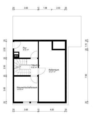
- Hauswirtschaftsraum
- optimale Süd-Ost-Ausrichtung
Preisinformation
1 Tiefgaragenstellplatz
Weitere Informationen
Sonstiges
Damit wir Ihnen das Exposé schnell und ohne Umwege zusenden können, geben Sie bitte bei Ihrer Anfrage Ihre vollständige Adresse, Telefonnummer und E-Mail-Adresse an.
Nach §2 Absatz 1 Nr. 10 des Geldwäschegesetzes sind wir als Immobilienmakler verpflichtet beim Immobilienverkauf Ihre kompletten Daten...
Anbieter der Immobilie

PLAZA IMMOBILIEN
Clayallee 171, 14195 Berlin
Online-ID: 2neaz5t
Referenznummer: 15SB2668-MARSHALL
Finde Angebote wie dieses
Hier geht es zu unserem Impressum, den Allgemeinen Geschäftsbedingungen, den Hinweisen zum Datenschutz und nutzungsbasierter Online-Werbung.