
Kehrt Immo GmbH
Herr Christoph Kallenbach
016 ···
Nr. anzeigenPreise & Kosten
Provision für Käufer
5 % inkl. MwSt.
Lage
Das Mehrfamilienhaus befindet sich in ruhiger Randlage von Enkenbach-Alsenborn, einer beliebten Wohngemeinde im Landkreis Kaiserslautern. Die Kombination aus naturnahem Wohnen, solider Infrastruktur und hervorragender Verkehrsanbindung macht diesen Standort besonders attraktiv für Mieter und somit auch für...
Das Renditeobjekt
Kategorie
Mehrfamilienhaus
Baujahr
1910
Bezug
sofort
Frei ab
vermietet
Energie & Heizung
Warum sehe ich diese Anzeige? – Du siehst diese Anzeige basierend auf Ihrer Navigation auf unserer Website und den Suchkriterien, die du verwendet hast.
Energieausweistyp
Verbrauchsausweis
Gebäudetyp
Wohngebäude
Baujahr laut Energieausweis
1910
Wesentliche Energieträger
Pellet,Solar
Gültigkeit
10.06.2025 bis 09.06.2035
Effizienzklasse
D
Endenergieverbrauch
126,00 kWh/(m²·a)
Weitere Energiedaten
Energieträger
Pellets, Solar
Heizungsart
Zentralheizung
Details
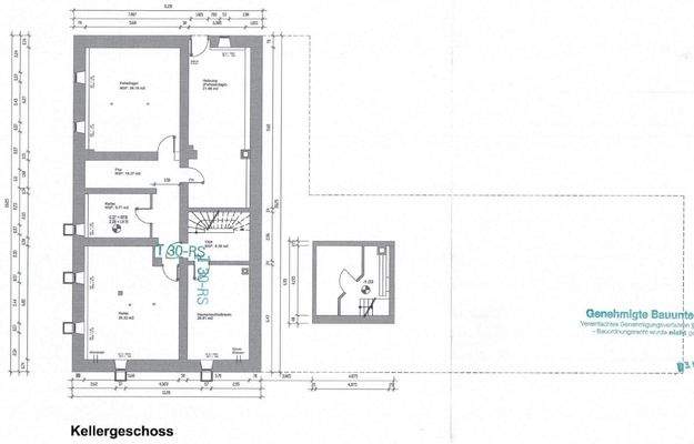
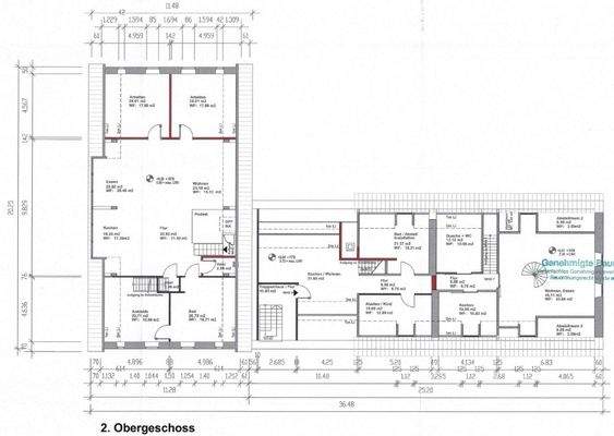
Objektbeschreibung
Zum Verkauf steht ein attraktives 8-Parteienhaus mit hervorragender Kapitalanleger-Attraktivität durch solide Vermietbarkeit und modernen Sanierungszustand in 67677 Enkenbach-Alsenborn.
Das großzügige Wohnensemble erstreckt sich über 831,3 m² Wohnfläche auf einem 3.216 m² großen Eigentumsgrundstück und bietet 14...
Ausstattung
Die Wohnungen sind vollständig renoviert, mit Innenwanddämmung, neu verputzt und gestrichen. Alle Einheiten verfügen über moderne Bäder mit Belüftung, Laminatböden, Fliesen und Einbauküchen. Zu jeder Wohnung gehört ein eigenes Kellerabteil.
Wohnfläche Whg. 1 (m²): 143,57
Wohnfläche Whg. 2 (m²): 72,91...
Preisinformation
14 Stellplätze
2 Garagenstellplätze
Soll-Mieteinnahmen pro Jahr: 101.118,20 EUR
Ist-Mieteinnahmen pro Jahr: 69.684,00 EUR
Weitere Informationen
Sonstiges
Unsere erfahrenen Finanzexperten unterstützen Sie gerne bei der Erstellung eines maßgeschneiderten Finanzierungskonzepts, abgestimmt auf Ihre persönlichen Wünsche und Möglichkeiten.
Sie haben Detailfragen, benötigen Unterlagen und/oder wünschen einen Besichtigungstermin? Sprechen Sie uns gerne an, wir sind...
Anbieter der Immobilie
Online-ID: 2ne9u5y
Referenznummer: Kallenbach13225
Finde Angebote wie dieses
Hier geht es zu unserem Impressum, den Allgemeinen Geschäftsbedingungen, den Hinweisen zum Datenschutz und nutzungsbasierter Online-Werbung.