
Beck & Holz Immobilien GmbH
Frau Franzi Leichmann
035 ···
Nr. anzeigenPreise & Kosten
Provision für Käufer
4,76 % inkl. MwSt.
Der Käufer zahlt im Erfolgsfall an die Firma Beck & Holz Immobilien GmbH eine Käufer-Maklerprovision in Höhe von 4,76 % inkl. 19 % MwSt.. Weitere Informationen siehe Provisionshinweis.
Lage
Bischofswerda ist eine Große Kreisstadt im Landkreis Bautzen am westlichen Rand der sächsischen Oberlausitz. Umgeben von der Europastadt Görlitz bis vor die Tore der sächsischen Landeshauptstadt Dresden und vom Naturpark Zittauer Gebirge bis in das junge Lausitzer Seenland ist man in Bischofswerda perfekt angebunden. Die...
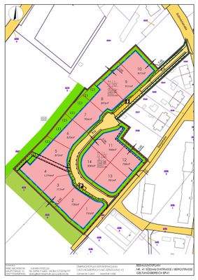
Das Grundstück
Details
Objektbeschreibung
Der erste neue Grundstückseigentümer hat bereits mit dem Bau seines neuen Zuhauses begonnen. Weitere schöne Grundstücke sind vorhanden und stehen für eine Bebauung zur Verfügung.
Verkauft werden weitere Eigenheim-Grundstücke in Schöneck, einem gut gelegenen neu entwickelten Baugebiet in Bischofswerda. Wie der Name der...
Ausstattung
Das schreibt der B-Plan vor:
- Mischgebiet
- Beschränkt auf max. 2 Wohnungen je Haus
- Offene Bauweise
- Nur Einzelhäuser zulässig
- Max. II vollgeschosse
- Grundflächenzahl 0,4
Weitere Informationen
Provisionshinweis
4,76 % inkl. MwSt.
Der Käufer zahlt im Erfolgsfall an die Firma Beck & Holz Immobilien GmbH eine Käufer-Maklerprovision in Höhe von 4,76 % inkl. 19 % MwSt.. Die Provision errechnet sich aus dem beurkundeten Kaufpreis. Dieses Exposé ist eine Vorinformation, als Rechtsgrundlage gilt allein der...
Dokumente
Anbieter der Immobilie
Beck & Holz Immobilien GmbH
Karlstrasse 1, 01445 Radebeul
Online-ID: 2ne9g5s
Referenznummer: 3979
Finde Angebote wie dieses
Hier geht es zu unserem Impressum, den Allgemeinen Geschäftsbedingungen, den Hinweisen zum Datenschutz und nutzungsbasierter Online-Werbung.