
HB-HB-Immobilien
Herr Bernd Tank
004 ···
Nr. anzeigenPreise & Kosten
Provision für Käufer
3,57 % (inkl. 19 % MwSt.) vom beurkundeten Kaufpreis, jeweils vom Käufer und Verkäufer
Lage
Standort & Umfeld
Bartow liegt im Herzen des Landkreises Mecklenburgische Seenplatte und ist eingebettet in eine ruhige, ländlich geprägte Natur- und Kulturlandschaft. Die Umgebung zeichnet sich durch weite Felder, kleine Waldflächen und eine gewachsene Dorfstruktur aus. Der Standort verbindet naturnahe Ruhe mit guter...
Das Haus
Baujahr
1917
Energie & Heizung
Warum sehe ich diese Anzeige? – Du siehst diese Anzeige basierend auf Ihrer Navigation auf unserer Website und den Suchkriterien, die du verwendet hast.
Wärme
Energieausweistyp
Bedarfsausweis
Gebäudetyp
Nicht-Wohngebäude
Baujahr laut Energieausweis
1991
Wesentliche Energieträger
OEL
Gültigkeit
bis 05.12.2034
Endenergiebedarf (Wärme)
363,50 kWh/(m²·a)
Weitere Energiedaten
Energieträger
Öl
Details
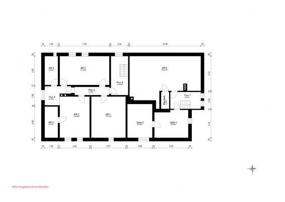
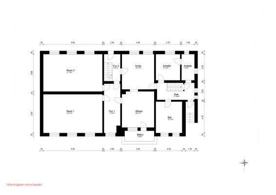
Objektbeschreibung
Substanz trifft Vision - ehemalige Schule mit großem Entwicklungspotenzial
Dieses Objekt richtet sich an Käufer, die nicht einfach einziehen, sondern neu denken, neu gestalten und entwickeln wollen.
Zum Kaufpreis von 239.000 € erwerben Sie einen vielseitigen Gebäudekomplex mit solider Grundsubstanz - jedoch mit dem...
Ausstattung
Medien - Strom, Wasser, Glasfaser,
Weitere Informationen
Sonstiges
Unsere Objektangaben basieren auf den uns erteilten Informationen. Eine Haftung für die Richtigkeit und Vollständigkeit können wir deshalb nicht übernehmen.
Stichworte
Nutzfläche: 300,00 m², Anzahl Balkone: 1, Anzahl der Tagungsräume: 1
Sonstiges/Wohnen: Einliegerwohnung
Anbieter der Immobilie
HB-HB-Immobilien
Schwachhauser Heerstr. 54A, 28209 Bremen
Online-ID: 2ne7g5z
Referenznummer: BT-26-03-0000459
Finde Angebote wie dieses
Hier geht es zu unserem Impressum, den Allgemeinen Geschäftsbedingungen, den Hinweisen zum Datenschutz und nutzungsbasierter Online-Werbung.