

Safe Select Immobilien und Baufinanzierung
Herr Arwid Walker
+49 ···
Nr. anzeigenPreise & Kosten
Provision für Käufer
provisionsfrei
Lage
Die Immobilie befindet sich in erstklassiger Strandlage in Paphos, nur wenige Schritte vom Meer entfernt.
In unmittelbarer Umgebung befinden sich:
- Sandstrände und Strandpromenade
- Restaurants, Cafés und Einkaufsmöglichkeiten
- Internationale Schulen
- Historische...
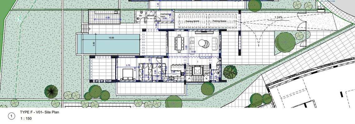
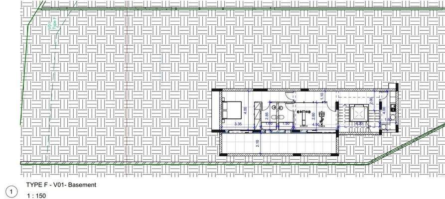
Das Haus
Kategorie
Villa
Baujahr
2026
Energie & Heizung
Warum sehe ich diese Anzeige? – Du siehst diese Anzeige basierend auf Ihrer Navigation auf unserer Website und den Suchkriterien, die du verwendet hast.
Weitere Energiedaten
Energieträger
Solar
Heizungsart
Etagenheizung, Fußbodenheizung, offener Kamin
Details
Objektbeschreibung
Willkommen in Ihrer persönlichen Oase der Eleganz und des Komforts - einer außergewöhnlichen Villa im renommierten Luxus-Resort von Paphos. Diese einzigartige Immobilie, erbaut im Jahr 2026, verkörpert modernes Wohnen auf höchstem Niveau, direkt am Meer gelegen und in absoluter Premiumlage.
Mit ihrer großzügigen...
Ausstattung
- Voll Möbliert
- Einbauküche
- Offene Küche
- Kabel Sat TV
- Terrasse
- Balkon
- Sauna
- Etagenheizung
- Fußbodenheizung
- Solarheizung
- Klimaanlage / modernes VRF-System
- Smart-Home-Technologie
- Private Stellplätze oder Tiefgarage
- 24/7 Rezeption und Concierge-Service
-...
Preisinformation
2 Carportplätze
1 Garagenstellplatz
Weitere Informationen
Sonstiges
Sehr geehrte Interessentinnen und Interessenten,
wir freuen uns, Sie bei Ihrer Immobiliensuche in Zypern begleiten zu dürfen. Durch unsere Zusammenarbeit mit fünf etablierten Maklerbüros vor Ort erhalten Sie Zugang zu mehr als 300 ausgewählten Objekten - von modernen Neubauwohnungen bis hin zu charmanten...
Anbieter der Immobilie
Safe Select Immobilien und Baufinanzierung
Biberacher Str. 18, 88444 Ummendorf

Online-ID: 2ne6z5g
Referenznummer: 162
Finde Angebote wie dieses
Hier geht es zu unserem Impressum, den Allgemeinen Geschäftsbedingungen, den Hinweisen zum Datenschutz und nutzungsbasierter Online-Werbung.