
KL Immobilien GmbH
Frau Juliana Lang
020 ···
Nr. anzeigenPreise & Kosten
Kaution
3.990,00
Provision für Mieter
Bitte beachte, das Angebot kann bei Vertragsabschluss die Zahlung einer Provision beinhalten. Weitere Informationen erhältst Du vom Anbieter.
Warum sehe ich diese Anzeige? – Du siehst diese Anzeige basierend auf Ihrer Navigation auf unserer Website und den Suchkriterien, die du verwendet hast.
Lage
Das Objekt befindet sich in zentraler Innenstadtlage von Oberhausen und liegt in einem der lebendigsten und meistfrequentierten Bereiche der Stadt. Das direkte Umfeld ist geprägt von einer gewachsenen Einzelhandelsstruktur mit zahlreichen Geschäften, Dienstleistungsbetrieben, gastronomischen Angeboten sowie sozialen und...
Die Ladenfläche
Kategorie
Verkaufsfläche
Baujahr
1954
Erdgeschoss
Energie & Heizung
Warum sehe ich diese Anzeige? – Du siehst diese Anzeige basierend auf Ihrer Navigation auf unserer Website und den Suchkriterien, die du verwendet hast.
Weitere Energiedaten
Heizungsart
Zentralheizung
Details
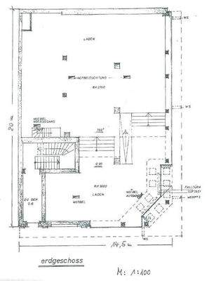
Objektbeschreibung
Das Objekt teilt sich wie folgt auf:
- Verkaufsfläche (EG)
- Lagerfläche mit Sanitäreinrichtung (UG)
Dieses Inserat wurde nach den uns vorliegenden Unterlagen und Angaben des Eigentümers erstellt. Trotz gewissenhafter Prüfung behalten wir uns Fehler bei der Erstellung und Verarbeitung vor und können somit keine...
Weitere Informationen
Objekt
Das angebotene Ladenlokal überzeugt durch eine großzügige und vielseitig nutzbare Gewerbefläche sowie eine ansprechende Präsentationsmöglichkeit. Dank der weitläufigen Schaufensterfront eignet sich die Einheit hervorragend für unterschiedlichste Nutzungskonzepte und bietet optimale Voraussetzungen zur...
Anbieter der Immobilie
KL Immobilien GmbH
Dorstener Str. 313, 46145 Oberhausen
Online-ID: 2ne5q5e
Referenznummer: KL6066
Finde Angebote wie dieses
Hier geht es zu unserem Impressum, den Allgemeinen Geschäftsbedingungen, den Hinweisen zum Datenschutz und nutzungsbasierter Online-Werbung.