

Bauteam GmbH
Herr Roman Bürger
0 3 ···
Nr. anzeigenPreise & Kosten
Provision für Käufer
provisionsfrei
Lage
Das Ostseeheilbad Zingst ist eine amtsfreie Gemeinde im Nordwesten des Landkreises Vorpommern-Rügen in Mecklenburg-Vorpommern, Landesteil Vorpommern. Zur Gemeinde gehört fast die gesamte gleichnamige Halbinsel sowie die ihr südlich vorgelagerten Inseln Kirr und Barther Oie. Die Gemeinde ist seit 2002 ein staatlich anerkanntes...
Das Haus
Kategorie
Einfamilienhaus
Geschosse
1 Geschoss
Energie & Heizung
Warum sehe ich diese Anzeige? – Du siehst diese Anzeige basierend auf Ihrer Navigation auf unserer Website und den Suchkriterien, die du verwendet hast.
Energieausweis: für diesen Gebäudetyp nicht notwendig
Weitere Energiedaten
Energieträger
Elektro
Heizungsart
Fußbodenheizung, Luft-/Wasser-Wärmepumpe, Zentralheizung
Details
Objektbeschreibung
+++NEUER PREIS+++PROVISIONSFREI DIREKT VOM BAUTRÄGER+++
Auf der beliebten Halbinsel Darß, in dem wunderschönen Seebad Zingst könnte Ihr neues Ferienhaus entstehen.
Projektiert ist unweit des Zingster Strandes ein hochwertig und modern ausgestattetes Einfamilienhaus, auf einer Grundstücksfläche von ca. 319 m²...
Weitere Informationen
Sonstiges
Eckdaten
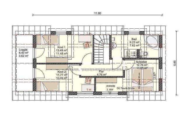
Einfamilienhaus:
4 Zimmer - ca. 107,4 m² inkl. anteilig Terrassen- u. Balkonfläche
Raumaufteilung:
- 1 offener Wohn- u. Kochbereich
- 3 Schlafzimmer
- 1 Bad mit Dusche & Wanne
- 1 Gäste-WC mit Dusche
- 1 HWR
Besichtigungstermine
Hat dieses exklusive...
Anbieter der Immobilie
Bauteam GmbH
Bauhofstraße 1 E, 18439 Stralsund

Online-ID: 2ne4x5y
Referenznummer: EFHKW14ZINGST
Finde Angebote wie dieses
Hier geht es zu unserem Impressum, den Allgemeinen Geschäftsbedingungen, den Hinweisen zum Datenschutz und nutzungsbasierter Online-Werbung.