

Manhart Immobilien
Frau Maritta Manhart
061 ···
Nr. anzeigenPreise & Kosten
Kaution
1800,00 €
Warum sehe ich diese Anzeige? – Du siehst diese Anzeige basierend auf Ihrer Navigation auf unserer Website und den Suchkriterien, die du verwendet hast.
Die Wohnung
Wohnungslage
1. Geschoss (Dachgeschoss)
Bezug
01. März 2026
Derzeitige Nutzung
vermietet
Wohnanlage
Energie & Heizung
Warum sehe ich diese Anzeige? – Du siehst diese Anzeige basierend auf Ihrer Navigation auf unserer Website und den Suchkriterien, die du verwendet hast.
Energieausweistyp
Verbrauchsausweis
Gebäudetyp
Wohngebäude
Baujahr laut Energieausweis
1981
Wesentliche Energieträger
Öl
Effizienzklasse
C
Endenergieverbrauch
89,30 kWh/(m²·a) - Warmwasser enthalten
Weitere Energiedaten
Energieträger
Öl
Heizungsart
Zentralheizung
Details
Objektbeschreibung
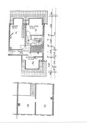
Die Wohnung befindet sich im 1. Obergschoss bzw. Dachgeschoss eines Mehrparteienhauses in Taunusstein-Orlen und erstreckt sich über 2 Ebenen.
Die erste Wohnebene umfasst das ca. 28m² große Wohnzimmer, ein geräumiges Schlafzimmer (ca. 17m²), die Wohnküche samt schicker Einbauküche, das moderne Tageslichtbadezimmer mit...
Ausstattung
-Wohnen über 2 Ebenen mit Galerie
-Ahornparkett
-Offene Wohnküche inklusive hochwertiger Einbauküche
-Tageslichtbadezimmer mit Wanne und Dusche
-Offene Balkendecke mit Spotbeleuchtung
-In 2019 neue Kunststofffenster und Zimmertüren
-Diverse Einbauschränke
-Kfz-Stellplatz
Weitere Informationen
Stichworte
Zustand: teilsaniert, gepflegt
Sonstiges/Wohnen: Galerie
Versorgung: Städtische Wasserversorgung, Städtische Stromversorgung
Sonstiges: frei werdend
Anbieter der Immobilie
Manhart Immobilien
Limburger Str. 12c, 65232 Taunusstein-Neuhof

Online-ID: 2ne475h
Finde Angebote wie dieses
Hier geht es zu unserem Impressum, den Allgemeinen Geschäftsbedingungen, den Hinweisen zum Datenschutz und nutzungsbasierter Online-Werbung.