
Immobilien Gesellschaft mbH der Frankfurter Volksbank Rhein/Main
Herr Gerhard Steinbacher
004 ···
Nr. anzeigenPreise & Kosten
Provision für Käufer
3,57% inkl. MwSt.
Wir haben einen provisionspflichtigen Maklervertrag mit dem Verkäufer in gleicher Höhe abgeschlossen.
Lage
Das "Apfeldorf" Wehrheim liegt im Hochtaunuskreis, nördlich von Frankfurt. In allen Ortsteilen gibt es Dorfplätze mit sehr schönen Fachwerkhäusern.
Anschluss besteht über die B456 zur A661 und A5. Die Taunusbahn verbindet Sie mit dem RMV und damit mit Frankfurt.
Im gewachsenen Ortskern finden sich gute...
Das Haus
Kategorie
Einfamilienhaus
Baujahr
1963
Energie & Heizung
Warum sehe ich diese Anzeige? – Du siehst diese Anzeige basierend auf Ihrer Navigation auf unserer Website und den Suchkriterien, die du verwendet hast.
Energieausweistyp
Bedarfsausweis
Gebäudetyp
Wohngebäude
Baujahr laut Energieausweis
1963
Wesentliche Energieträger
GAS
Gültigkeit
bis 27.04.2035
Effizienzklasse
G
Endenergiebedarf
247,10 kWh/(m²·a)
Weitere Energiedaten
Haustyp
Massivhaus
Energieträger
Gas
Heizungsart
Zentralheizung
Details
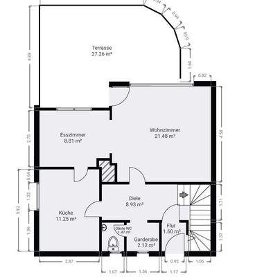
Objektbeschreibung
Dieses freistehende Einfamilienhaus befindet sich in einer angenehm ruhigen Wohnlage von Wehrheim. Die Taunusbahn sowie eine Bushaltestelle sind in wenigen Gehminuten erreichbar - ideal für Pendler und Familien.
Im Erdgeschoss empfängt Sie ein freundlicher Eingangsbereich mit Garderobe und Gäste-WC. Die separate Küche...
Preisinformation
1 Garagenstellplatz
2 Parkhausstellplätze
Weitere Informationen
Sonstiges
Gerne stehen wir Ihnen für ein Beratungs- und Besichtigungstermin zur Verfügung.
Sie möchten selbst eine Immobilie verkaufen?
Wir ermitteln einen seriösen und marktgerechten Wert Ihrer Immobilie. Mit einem individuell für Sie abgestimmten Vermarktungsplan optimieren wir die Verkaufschancen. Als...
Anbieter der Immobilie
Immobilien Gesellschaft mbH der Frankfurter Volksbank Rhein/Main
Seligenstädter Str. 52, 63179 Obertshausen
Online-ID: 2ne3z56
Referenznummer: 12255
Finde Angebote wie dieses
Hier geht es zu unserem Impressum, den Allgemeinen Geschäftsbedingungen, den Hinweisen zum Datenschutz und nutzungsbasierter Online-Werbung.