

FBR Maklerkontor
Herr Axel Brandt
038 ···
Nr. anzeigenPreise & Kosten
Provision für Käufer
3,57 % inkl. gesetzl. MwSt. vom not. Kaufpreis
Lage
Das Einfamilienhaus befindet sich in ruhiger, dörflich geprägter Wohnlage in der Gemeinde Klinken im südlichen Teil des Bundeslandes Mecklenburg-Vorpommern. Die Umgebung ist geprägt von aufgelockerter Einfamilienhausbebauung, landwirtschaftlichen Flächen sowie weitläufigen Natur- und Erholungslandschaften. Das Wohnumfeld...
Das Haus
Kategorie
Einfamilienhaus
Baujahr
1907
Bezug
Kaufpreiszahlung
Energie & Heizung
Warum sehe ich diese Anzeige? – Du siehst diese Anzeige basierend auf Ihrer Navigation auf unserer Website und den Suchkriterien, die du verwendet hast.
Energieausweistyp
Verbrauchsausweis
Gebäudetyp
Wohngebäude
Baujahr laut Energieausweis
1907
Wesentliche Energieträger
GAS
Gültigkeit
bis 25.03.2034
Effizienzklasse
D
Endenergieverbrauch
126,00 kWh/(m²·a)
Weitere Energiedaten
Haustyp
Massivhaus
Energieträger
Gas, Holz
Heizungsart
Fußbodenheizung, Ofen, offener Kamin, Zentralheizung
Details
Objektbeschreibung
Willkommen in Ihrem neuen Zuhause - einem gepflegten und laufend modernisierten Einfamilienhaus in ruhiger, naturnaher Lage der Gemeinde Klinken. Die Immobilie vereint den Charme eines gewachsenen Hauses mit einer Vielzahl zeitgemäßer Investitionen und bietet ideale Voraussetzungen für Familien, Mehrgenerationenwohnen oder...
Ausstattung
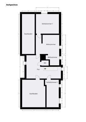
Die Immobilie gliedert sich wie folgt:
Erdgeschoss (insgesamt ca. 136,84 m²):
ca. 07,02 m² Diele
ca. 11,70 m² Arbeitszimmer
ca. 23,40 m² Wohnen
ca. 15,41 m² Küche
ca. 08,00 m² Bad I
ca. 14,43 m² Schlafzimmer
ca. 08,10 m² Bad II
ca. 23,85 m² Gästezimmer
ca. 00,88 m² Flur
ca. 24,05 m²...
Preisinformation
2 Stellplätze
2 Garagenstellplätze
Beginn der Angebotsphase: 03.03.2026 00:00:00
Ende der Bietzeit: 06.03.2026 00:00:00
Weitere Informationen
Sonstiges
Auch für diese Immobilie bieten wir Ihnen den Service einer umfassenden virtuellen Besichtigung. Nutzen Sie diese Möglichkeit für Ihre intensive Vorinformation!
Die Übernahme / Übergabe erfolgt im Leerstand nach Kauf und Vereinbarung.
Besichtigungen erfolgen ausschließlich nach terminlicher...
Anbieter der Immobilie

Online-ID: 2ne325f
Referenznummer: TF12432-26
Finde Angebote wie dieses
Hier geht es zu unserem Impressum, den Allgemeinen Geschäftsbedingungen, den Hinweisen zum Datenschutz und nutzungsbasierter Online-Werbung.