
GRAPHEUM – CONSULTING – NETWORK LTD
Herr/Frau Bernd Baehre
003 ···
Nr. anzeigenPreise & Kosten
Provision für Käufer
provisionsfrei
Lage
Das Grundstück befindet sich im Landkreis Varna in dem kleinen ruhigem historischen Dorf Shtipsko mit ca. 240 Meter über dem Meeresspiegel.
Der alte Name des Dorfes lautete Hasardzhik. Es wurde 1934 umbenannt. Shtispko ist stolz auf seine Goldfunde. Im Dorf und in der Umgebung lebten Römer und Thraker. 1965 fanden zwei...
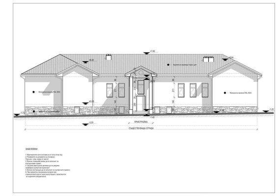
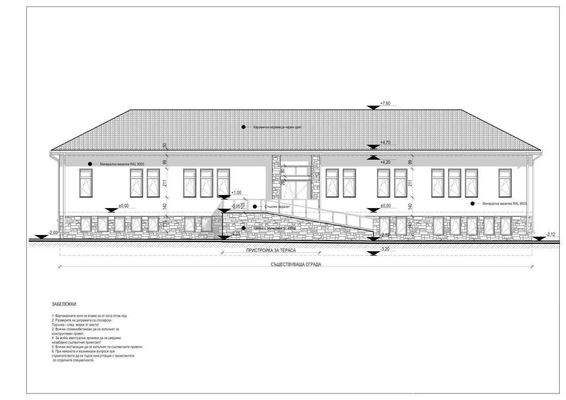
Das Haus
Kategorie
Herrenhaus
Geschosse
2 Geschosse
Baujahr
1900
Bezug
2026
Derzeitige Nutzung
frei
Energie & Heizung
Warum sehe ich diese Anzeige? – Du siehst diese Anzeige basierend auf Ihrer Navigation auf unserer Website und den Suchkriterien, die du verwendet hast.
Gebäudetyp
Wohngebäude
Weitere Energiedaten
Haustyp
Massivhaus, Niedrigenergiehaus
Energieträger
Holz, Pellets
Heizungsart
Fußbodenheizung, Luft-/Wasser-Wärmepumpe, Ofen, Zentralheizung
Details
Objektbeschreibung
Objektbeschreibung:
Das Grundstück besteht aus zwei Parzellen mit 2.109qm (Umwidmung als Bauland möglich), optimal als Selbstversorgergarten z.B. mit Permakultur geeignet und 2856 qm, insgesamt 4.965 Quadratmeter.
Auf dem Grundstück befindet sich ein intakter Stadtwasser - und Stromanschluß ( Neuanschluß dauert ca...
Weitere Informationen
Sonstiges
Sonstiges
Auf Wunsch können Kontakte zu Architekten und Baufirmen vermittelt werden. Ein Baubeginn kann daher zeitnah erfolgen.
Anfragen von Maklern mit bonitässtarken Interessenten sind willkommen.
Stichworte
Sonstiges: Keller als Wohnraum nutzbar
Stichworte
Zustand...
Dokumente
Anbieter der Immobilie
GRAPHEUM – CONSULTING – NETWORK LTD
Blvd. Petar Enchev Nr. 15, Fl. 2, Apt. 2, 9000 VARNA
Online-ID: 2ne265j
Finde Angebote wie dieses
Hier geht es zu unserem Impressum, den Allgemeinen Geschäftsbedingungen, den Hinweisen zum Datenschutz und nutzungsbasierter Online-Werbung.