
MSE-HAUS GmbH
Herr Moritz Schulz
004 ···
Nr. anzeigenPreise & Kosten
Provision für Käufer
3,57% inkl. MwSt inkl. MwSt.
Lage
Das Einfamilienhaus befindet sich in der Dorfstraße 48 in Bugewitz, einer ruhigen und idyllischen Gemeinde im Landkreis Vorpommern-Greifswald. Die Lage ist geprägt von dörflichem Charakter, viel Natur und einem entspannten Wohnumfeld - ideal für alle, die Wert auf Ruhe und Lebensqualität abseits städtischer Hektik...
Das Haus
Kategorie
Einfamilienhaus
Baujahr
1958
Energie & Heizung
Warum sehe ich diese Anzeige? – Du siehst diese Anzeige basierend auf Ihrer Navigation auf unserer Website und den Suchkriterien, die du verwendet hast.
Energieausweistyp
Verbrauchsausweis
Gebäudetyp
Wohngebäude
Baujahr laut Energieausweis
1958
Wesentliche Energieträger
FLUESSIGGAS
Effizienzklasse
D
Endenergieverbrauch
111,80 kWh/(m²·a)
Weitere Energiedaten
Energieträger
Gas
Heizungsart
Zentralheizung
Details
Objektbeschreibung
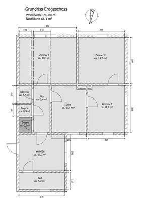
Zum Verkauf steht ein massiv errichtetes Einfamilienhaus in ruhiger, dörflicher Lage von 17398 Bugewitz. Die Immobilie wurde in den Jahren 1956 bis 1958 errichtet, ist teilunterkellert und verfügt über ein Erdgeschoss sowie ein teilausgebautes Dachgeschoss. Mit einer Wohnfläche von ca. 102,3 m² sowie zusätzlichen Nutzflächen...
Ausstattung
- Massive Bauweise
- Baujahr ca. 1956-1958
- Teilunterkellert
- Erdgeschoss und teilausgebautes Dachgeschoss
- Wohnfläche ca. 103 m²
- Nutzfläche im Haus ca. 45 m²
- Grundstück ca. 713 m²
- Gepflegter Gesamtzustand mit Modernisierungsbedarf
- Gas-Brennwertheizung aus dem Jahr 2016
- Gastank...
Preisinformation
2 Stellplätze
1 Garagenstellplatz
Weitere Informationen
Sonstiges
Es werden keine Anfragen, ohne vollständigen Namen/Vornamen, der Anschrift und einer Telefonnummer beantwortet. Weitere interessante Miet- Kauf- und Neubauangebote aus unserem Portfolio finden Sie auf unserer Homepage unter www.mse-haus.de
Sehr gerne können Sie auch telefonisch mit uns Kontakt aufnehmen...
Anbieter der Immobilie
MSE-HAUS GmbH
Wilhelm-Stolte-Straße 84, 17235 Neustrelitz
Online-ID: 2ndxa5s
Referenznummer: 568
Finde Angebote wie dieses
Hier geht es zu unserem Impressum, den Allgemeinen Geschäftsbedingungen, den Hinweisen zum Datenschutz und nutzungsbasierter Online-Werbung.