
LBI Wohnen und Service GmbH
Herr Mathias Pötter
+49 ···
Nr. anzeigenPreise & Kosten
Provision für Käufer
7,14 % inkl. MwSt. vom beurkundeten Kaufpreis
Lage
Zentrale Lage - nahe der Universität mit direkter ÖPNV Anbindung.
Alle erforderlichen behördlichen und/oder schulischen Einrichtungen, Einkaufsmöglichkeiten, Nahverkehrsanschlüsse, Ärzte, Apotheken, etc. befinden sich in unmittelbarer Umgebung und sind überwiegend innerhalb weniger Minuten gut zu Fuß zu erreichen.
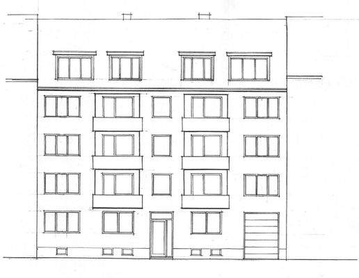
Das Haus
Kategorie
Mehrfamilienhaus
Baujahr
1950
Derzeitige Nutzung
vermietet
Energie & Heizung
Warum sehe ich diese Anzeige? – Du siehst diese Anzeige basierend auf Ihrer Navigation auf unserer Website und den Suchkriterien, die du verwendet hast.
Energieausweistyp
Bedarfsausweis
Gebäudetyp
Wohngebäude
Wesentliche Energieträger
Gas
Gültigkeit
10.10.2023 bis 09.10.2033
Effizienzklasse
E
Endenergiebedarf
132,60 kWh/(m²·a)
Weitere Energiedaten
Energieträger
Gas
Heizungsart
Etagenheizung
Details
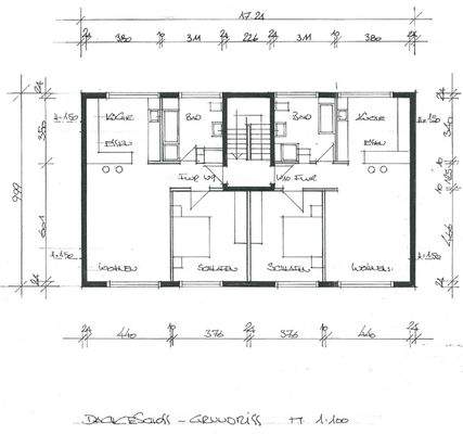
Objektbeschreibung
Mehrfamilienhaus mit 10 Wohneinheiten, Garagen und attraktiver Rendite.
In begehrter Zentrumslage von Kassel präsentieren wir Ihnen dieses gepflegte Mehrfamilienhaus mit solider Bausubstanz, guter Vermietbarkeit und langfristigem Wertsteigerungspotenzial.
Das ca. 1950 errichtete Objekt bietet eine Gesamtwohnfläche...
Ausstattung
- 10 Wohneinheiten
- 4 Garagen + 1 PKW-Stellplatz
- 8 Balkone
- Elektrisches Sektionaltor
- Gas-Etagenheizungen
- Keller
- Trockenraum
- Dachgeschoss mit Gauben
Preisinformation
5 Garagenstellplätze
Weitere Informationen
Sonstiges
Alle Angaben sind ohne Gewähr und basieren ausschließlich auf Informationen unseres Auftraggebers. Es wird keine Gewähr für die Vollständigkeit, Richtigkeit und Aktualität dieser Angaben von uns übernommen. Es gelten unsere AGBs.
Stichworte
Garage vorhanden, Stellplatz vorhanden, Anzahl der Schlafzimmer...
Anbieter der Immobilie
Online-ID: 2ndws5c
Referenznummer: 3411727
Finde Angebote wie dieses
Hier geht es zu unserem Impressum, den Allgemeinen Geschäftsbedingungen, den Hinweisen zum Datenschutz und nutzungsbasierter Online-Werbung.