
Evernest GmbH
Fabian Kwaßny
+49 ···
Nr. anzeigenPreise & Kosten
Provision für Käufer
5.95 inkl. MwSt.
Bei Abschluss eines notariellen Kaufvertrages ist eine Käuferprovision vom Käufer in Höhe von 5.95 % inkl. MwSt. aus dem Kaufpreis fällig.
Lage
Herford, Stadt im Osten Nordrhein-Westfalens mit rund 65.000 Einwohnern, besticht durch historischen Charme und moderne Infrastruktur. Die reizvolle Altstadt, vielfältige Freizeitangebote und die zentrale Lage in Ostwestfalen-Lippe machen Herford attraktiv.
Die hervorragende Verkehrsanbindung über die Autobahnen A2 und...
Das Haus
Kategorie
Einfamilienhaus
Baujahr
1928
Energie & Heizung
Warum sehe ich diese Anzeige? – Du siehst diese Anzeige basierend auf Ihrer Navigation auf unserer Website und den Suchkriterien, die du verwendet hast.
Energieausweistyp
Bedarfsausweis
Gebäudetyp
Wohngebäude
Effizienzklasse
C
Endenergiebedarf
92,10 kWh/(m²·a)
Weitere Energiedaten
Energieträger
Elektro
Details
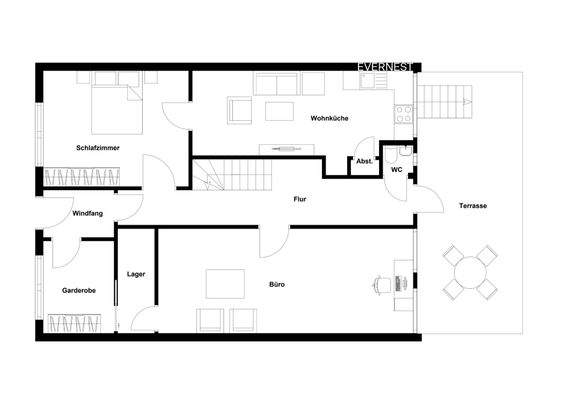
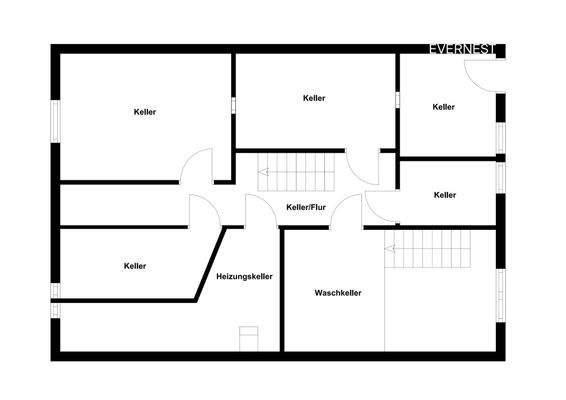
Objektbeschreibung
Mit diesem Objekt befindet sich eine Kaufgelegenheit auf dem Herforder Immobilienmarkt, die wahrlich Seltenheitswert haben dürfte. Ein Stadthaus in exponierter Lage mit ruhigem und geschütztem Garten hinter dem Haus, welches nicht nur durch eine beeindruckende Gesamtfläche punktet, sondern auch durch einen unschlagbaren...
Ausstattung
Die Highlights im Überblick:
- Zur Eigennutzung und Kapitalanlage denkbar
- Absolute Innenstadtlage & perfekte Infrastruktur
- Bodenrichtwert ca. 220€/m² Grundstücksfläche
- Gute bauliche Substanz für die weiteren Pläne
- Unschlagbarer Quadratmeterpreis (ca. 1.047,00€/m²)
- PV-Anlage mit Speicher aus...
Weitere Informationen
Stichworte
Anzahl der Schlafzimmer: 7, Anzahl der Badezimmer: 2, Anzahl der separaten WCs: 3, Anzahl Balkone: 1, Anzahl Terrassen: 1, Balkon-Terrassen-Fläche: 11,33 m², Gartenfläche: 72,00 m², 3 Etagen
Anbieter der Immobilie
Online-ID: 2ndvy5s
Referenznummer: L-7BOTEHJ
Finde Angebote wie dieses
Hier geht es zu unserem Impressum, den Allgemeinen Geschäftsbedingungen, den Hinweisen zum Datenschutz und nutzungsbasierter Online-Werbung.