
ohne-makler.net - Immobilien selbst vermarkten
Privat von T. M.
017 ···
Nr. anzeigenPreise & Kosten
Provision für Käufer
provisionsfrei
Lage
Die Wohnung befindet sich in einer attraktiven und gefragten Wohnlage, die urbanen Komfort mit naturnaher Erholung auf ideale Weise verbindet. Die Innenstadt sowie der Bahnhof sind in kurzer Zeit erreichbar und bieten eine sehr gute Anbindung für Berufstätige und Pendler. Einkaufsmöglichkeiten, Restaurants, Cafés sowie...
Die Wohnung
Wohnungslage
2. Geschoss (Dachgeschoss)
Bezug
nach Absprache
Derzeitige Nutzung
vermietet
Wohnanlage
Energie & Heizung
Warum sehe ich diese Anzeige? – Du siehst diese Anzeige basierend auf Ihrer Navigation auf unserer Website und den Suchkriterien, die du verwendet hast.
Energieausweistyp
Bedarfsausweis
Gebäudetyp
Wohngebäude
Effizienzklasse
E
Endenergiebedarf
136,00 kWh/(m²·a)
Weitere Energiedaten
Energieträger
Gas
Heizungsart
Etagenheizung
Details
Objektbeschreibung
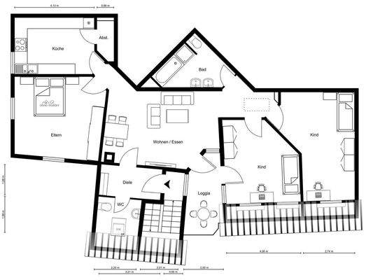
Gut ausgebaute Wohnung mit 2-3 Schlafzimmern, großzügigem Wohn-Esszimmer, Diele, Küche und Abstellraum. Der Wohn-Essbereich kann wahlweise als ca. 47 m² großer, offener Wohnraum genutzt oder - wie im Exposé dargestellt - durch Abtrennung in ein zusätzliches viertes Schlaf- oder Arbeitszimmer umgewandelt werden. Das Bad ist...
Ausstattung
Balkon, Terrasse, Keller, Dachterrasse, Vollbad, Duschbad, Einbauküche, Gäste-WC, Fliesen
Bemerkungen:
Die Wohnung überzeugt durch einen durchdachten Grundriss sowie eine hochwertige und gepflegte Ausstattung. Der großzügige Wohn-Essbereich mit ca. 47 m² bietet flexible Nutzungsmöglichkeiten und kann bei Bedarf in...
Preisinformation
1 Tiefgaragenstellplatz, Kaufpreis: 12.000,00 EUR
Weitere Informationen
Sonstiges
Heizungsart: Etagenheizung
Energieträger: Gas
Makleranfragen nicht erwünscht. Nach § 7 UWG sind unaufgeforderte Kontaktaufnahmen durch Makler ohne ausdrückliche Einwilligung des Empfängers verboten!
ohne-makler (OM) ist weder Anbieter noch Vermittler der Immobilie. OM betreibt eine Plattform...
Dokumente
Anbieter der Immobilie
ohne-makler.net - Immobilien selbst vermarkten
Humboldtstr. 25 A, 21509 Glinde
Online-ID: 2ndv359
Referenznummer: 421643
Finde Angebote wie dieses
Hier geht es zu unserem Impressum, den Allgemeinen Geschäftsbedingungen, den Hinweisen zum Datenschutz und nutzungsbasierter Online-Werbung.