
Hansa Immobilien GmbH
Herr Ahmad Latif
040 ···
Nr. anzeigenPreise & Kosten
Provision für Käufer
3,57 % inkl. MwSt.
Lage
Havighorst, ein ruhiger Ortsteil der Gemeinde Oststeinbek, verbindet naturnahes Wohnen mit der unmittelbaren Nähe zur Hansestadt Hamburg. Direkt an der Stadtgrenze zu Hamburg-Boberg gelegen, genießen Sie hier eine seltene Kombination aus entspannter Wohnatmosphäre, gewachsener Nachbarschaft und hervorragender Anbindung an die...
Das Haus
Kategorie
Doppelhaushälfte
Baujahr
1986
Bezug
ab Sofort
Energie & Heizung
Warum sehe ich diese Anzeige? – Du siehst diese Anzeige basierend auf Ihrer Navigation auf unserer Website und den Suchkriterien, die du verwendet hast.
Energieausweistyp
Verbrauchsausweis
Gebäudetyp
Wohngebäude
Baujahr laut Energieausweis
1986
Wesentliche Energieträger
GAS
Gültigkeit
bis 24.02.2036
Effizienzklasse
E
Endenergieverbrauch
133,10 kWh/(m²·a)
Weitere Energiedaten
Energieträger
Gas
Heizungsart
Zentralheizung
Details
Objektbeschreibung
Diese Doppelhaushälfte befindet sich in ruhiger Sackgassenlage von Oststeinbek im Ortsteil Havighorst, unmittelbar an der Hamburger Stadtgrenze zu Boberg. Die gewachsene Wohnlage verbindet naturnahes Umfeld mit einer sehr guten Anbindung an die Metropole Hamburg und bietet insbesondere Familien ein angenehmes, sicheres...
Ausstattung
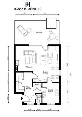
- Wohnfläche ca. 92,85 m²
- Nutzfläche ca. 51,20 m²
- Vollunterkellert
- 4 Zimmer
- 3 Schlafzimmer
- Separate Küche
- Tageslichtbad
- Gäste-WC
- Terrasse mit Zugang zum Garten
- Sondernutzungsrecht an eigenen Gartenflächen
- Gastherme aus 2005
- Dachboen
- Carport direkt am Haus
-...
Preisinformation
1 Carportplatz
Weitere Informationen
Sonstiges
Wir bitten um Verständnis, dass wir die Vermarktung für alle Beteiligten so reibungslos und professionell wie möglich gestalten möchten. Daher können wir Exposé-Anfragen nur beantworten, wenn Sie uns Ihre vollständige Adresse sowie eine Telefonnummer mitteilen. Besichtigungen werden ausschließlich über unser Büro...
Anbieter der Immobilie
Hansa Immobilien GmbH
Vierlandenstraße , 21029 Hamburg
Online-ID: 2ndv25p
Referenznummer: 195
Finde Angebote wie dieses
Hier geht es zu unserem Impressum, den Allgemeinen Geschäftsbedingungen, den Hinweisen zum Datenschutz und nutzungsbasierter Online-Werbung.