

Inka Abel Real Estate
Frau Inka Abel
017 ···
Nr. anzeigenPreise & Kosten
Provision für Käufer
Die Käuferprovision beträgt 3,5 % zzgl. 19% der gesetzl. MwSt. vom notariellen Kaufpreis.
Lage
Niederndodeleben ist ein charmant gelegener Ortsteil der Einheitsgemeinde Hohe Börde und liegt direkt vor den Toren der Landeshauptstadt Magdeburg - und genau das macht ihn so attraktiv. Die perfekte Verbindung aus ländlicher Ruhe und städtischer Nähe sorgt für ein entspanntes Lebensgefühl mit kurzen Wegen.
Die...
Das Haus
Baujahr
2001
Bezug
ab sofort
Energie & Heizung
Warum sehe ich diese Anzeige? – Du siehst diese Anzeige basierend auf Ihrer Navigation auf unserer Website und den Suchkriterien, die du verwendet hast.
Weitere Energiedaten
Energieträger
Gas
Details
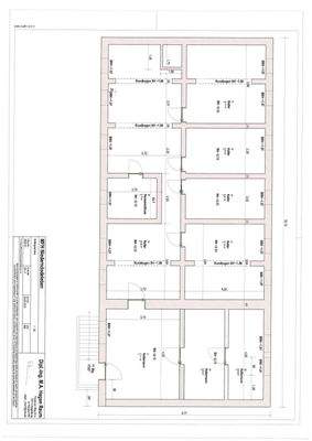
Objektbeschreibung
Attraktives Mehrfamilienhaus mit Potenzial - nahe Magdeburg
Dieses gepflegte Mehrfamilienhaus mit Vollkeller befindet sich in ruhiger Lage von Niederndodeleben - nur einen Katzensprung von Magdeburg entfernt.
Das im Jahr 2001 errichtete Gebäude beherbergt vier Wohneinheiten:
Zwei 2-Zimmer-Wohnungen mit jeweils ca...
Ausstattung
Alle Highlights auf einen Blick:
- Baujahr: 2000/2001
- Grundstücksfläche: 860 m²
- Wohnfläche: ca. 247,60 m²
- Gewerbefläche ca. 15,14 m²
- 2 WE mit 48,7 m² und 50,7 m² (2 Zi)
- 2 WE mit je 73,6 m² und 74,6 m² (3 Zi)
- manuelle Rollläden in allen Wohneinheiten
- unterkellert
- Carport (für...
Weitere Informationen
Sonstiges
Ich freue mich auf ein persönliches Gespräch und nehme sehr gern Ihre Wünsche für ein Immobiliengesuch auf, um Ihnen auch passende Angebote "Off Market" unterbreiten zu können.
Bei aller Sorgfalt kann ich keine Gewähr dafür übernehmen, dass alle Angebotsangaben richtig sind und das Objekt bei Zugang dieses...
Anbieter der Immobilie
Inka Abel Real Estate
Mühlenstr.1, 39175 Biederitz

Online-ID: 2ndra5w
Referenznummer: IA-00191-Nieder-N
Finde Angebote wie dieses
Hier geht es zu unserem Impressum, den Allgemeinen Geschäftsbedingungen, den Hinweisen zum Datenschutz und nutzungsbasierter Online-Werbung.