
BEST PLACE Immobilien GmbH & Co. KG
Ihr Best Place Vertriebsteam
004 ···
Nr. anzeigenPreise & Kosten
Provision für Käufer
provisionsfrei
Lage
. 100 m bis zur Bäckerei
. 150 m bis zur nächsten Bushaltestelle
. 250 m zum S-Bahnhof Westend
. 350 m zum Klausenerplatz mit Wochenmarkt, Supermarkt, Läden
. 400 m zum Centro Italia (Supermarkt)
. 500 m zum Schloss Charlottenburg (Park, Ausstellung, Gastronomie, Events)
. 800 m zur Schlosspark-Klinik...
Die Wohnung
Wohnungslage
2. Geschoss
Wohnanlage
Energie & Heizung
Warum sehe ich diese Anzeige? – Du siehst diese Anzeige basierend auf Ihrer Navigation auf unserer Website und den Suchkriterien, die du verwendet hast.
Energieausweistyp
Bedarfsausweis
Gebäudetyp
Wohngebäude
Baujahr laut Energieausweis
1918
Wesentliche Energieträger
GAS
Gültigkeit
bis 10.02.2030
Effizienzklasse
F
Endenergiebedarf
161,40 kWh/(m²·a)
Weitere Energiedaten
Energieträger
Gas
Heizungsart
Etagenheizung
Details
Objektbeschreibung
Über das freundliche Treppenhaus erreichen Sie diese attraktive Wohnung im zweiten Obergeschoss. Die effizient geschnittene Wohnung zeichnet ihre ideale Raumaufteilung aus, die sie sowohl für Singles als auch Paare attraktiv macht - auch als Investment kann diese Wohnung spannend sein. Das große Zimmer bietet Platz für einen...
Ausstattung
. Parkettboden
. Badezimmer mit Badewanne und Handtuchheizkörper
. Gegensprechanlage
. Flur mit Deckenstrahler
. Kellerabteil
Weitere Informationen
Stichworte
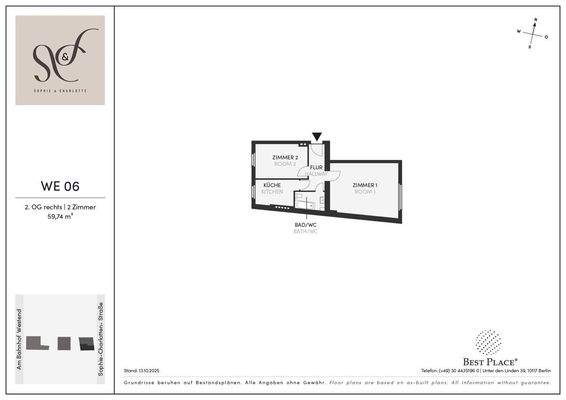
vermietbare Fläche: 59,74 m², Bundesland: Berlin, 6 Etagen, Wohnungsnr.: WE 06
Anbieter der Immobilie
Online-ID: 2ndpr52
Referenznummer: SOCH-WE06
Finde Angebote wie dieses
Hier geht es zu unserem Impressum, den Allgemeinen Geschäftsbedingungen, den Hinweisen zum Datenschutz und nutzungsbasierter Online-Werbung.