

IF Group AG
Herr/Frau Team Vermietung
037 ···
Nr. anzeigenPreise & Kosten
Kaution
3 Monatskaltmieten
Warum sehe ich diese Anzeige? – Du siehst diese Anzeige basierend auf Ihrer Navigation auf unserer Website und den Suchkriterien, die du verwendet hast.
Lage
Die Büroflächen befinden sich in zentraler Lage von Titisee-Neustadt, direkt an der Hauptstraße. Die Hauptstraße ist eine der wichtigsten Verkehrs- und Geschäftsachsen der Stadt und bietet eine sehr gute Sichtbarkeit sowie eine ausgezeichnete Erreichbarkeit. Das Umfeld ist geprägt von Büro- und Dienstleistungsnutzungen...
Büro-/Praxisfläche
Kategorie
Bürofläche
Baujahr
1972
Bezug
sofort
Energie & Heizung
Warum sehe ich diese Anzeige? – Du siehst diese Anzeige basierend auf Ihrer Navigation auf unserer Website und den Suchkriterien, die du verwendet hast.
Energieausweistyp
Verbrauchsausweis
Gebäudetyp
Wohngebäude
Baujahr laut Energieausweis
1972
Wesentliche Energieträger
Heizöl
Gültigkeit
30.11.2019 bis 29.11.2029
Effizienzklasse
C
Endenergieverbrauch
82,90 kWh/(m²·a)
Weitere Energiedaten
Heizungsart
Zentralheizung
Details
Objektbeschreibung
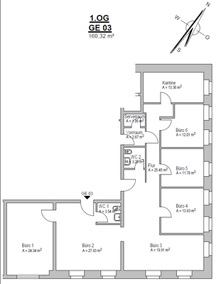
Die angebotenen Gewerbe- bzw. Büroflächen befinden sich im 3. Obergeschoss eines Wohn- und Geschäftshauses in Titisee-Neustadt. Das Objekt vereint Wohnen und Arbeiten in einer harmonischen Mischung und umfasst insgesamt 10 Wohneinheiten sowie 5 Gewerbeeinheiten.
Das Gebäude ist barrierefrei konzipiert und verfügt über...
Weitere Informationen
Besichtigungstermine
Bei Interesse vereinbaren Sie gern einen Besichtigungstermin mit uns.
Hinterlassen Sie Ihre Anschrift, E-Mail-Adresse sowie Telefonnummer und wir werden uns umgehend mit Ihnen in Verbindung setzen.
Hinweise zum Datenschutz unter https://www.ifgruppe.com/impressum-datenschutz.
Mit Ihrer...
Anbieter der Immobilie
IF Group AG
Oberes Muldental 2, 09599 Freiberg

Online-ID: 2ndnx55
Finde Angebote wie dieses
Hier geht es zu unserem Impressum, den Allgemeinen Geschäftsbedingungen, den Hinweisen zum Datenschutz und nutzungsbasierter Online-Werbung.