

Ulrike Faber Immobilien
Frau Ulrike Faber
017 ···
Nr. anzeigenPreise & Kosten
Provision für Käufer
3,0% zzgl. MwSt
Die Notar- und die Grundbuchkosten sowie die Grunderwerbssteuer sind vom Käufer zu tragen. Weitere Informationen siehe Provisionshinweis.
Lage
Die Doppelhaushälfte befindet sich in einem ruhigen östlichen Stadtteil von Hannover, der für seine familienfreundliche Atmosphäre und Anbindung ans Grüne bekannt ist. In der Umgebung gibt es zahlreiche Schulen, Geschäfte und Restaurants, die den Bewohnern eine gute Infrastruktur bieten. Zudem lädt der nahegelegene Park zu...
Das Haus
Kategorie
Doppelhaushälfte
Baujahr
-2025
Energie & Heizung
Warum sehe ich diese Anzeige? – Du siehst diese Anzeige basierend auf Ihrer Navigation auf unserer Website und den Suchkriterien, die du verwendet hast.
Weitere Energiedaten
Heizungsart
Luft-/Wasser-Wärmepumpe
Details
Objektbeschreibung
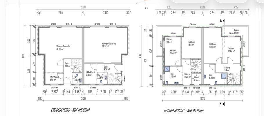
Die moderne, helle Doppelhaushälfte in massiver Bausweise ist aus dem Jahr 2025 und bietet auf zwei Etagen eine Wohnfläche von insgesamt 108 m². Das Haus verfügt im Erdgeschoss über ein ca. 40m² grossen Wohn-Essbereich mit offener Wohnküche und direktem Zugang zur Terasse sowie einem modern gefließtem Gäste WC und einem...
Ausstattung
Die Böden sind modern gefließt, in den Wohnbereichen und auf der Dachterrasse können die Bodenbelege noch frei entschieden werden. Dir Fotos der Wohnräumen und der Balkonbereiche bilden nur mögliche Gestaltungsoptionen ab. Dir Badezimmeramaturen können ebenfalls individuellen Geschmack entsprechend ausgesucht werden. Der...
Preisinformation
1 Stellplatz
Weitere Informationen
Provisionshinweis
3,0% zzgl. MwSt
Die Notar- und die Grundbuchkosten sowie die Grunderwerbssteuer sind vom Käufer zu tragen. Die Makler-Courtage in Höhe von 6,00 % des Kaufpreises exklusive der gesetzlichen Mehrwertsteuer verteilt sich zu je 3,0 % zzgl. MWST auf den Käufer und Verkäufer. Sie ist verdient und fällig...
Anbieter der Immobilie
Ulrike Faber Immobilien
In der Harst 5, 31275 Lehrte

Online-ID: 2ndlx5z
Referenznummer: 24#Pv83q
Finde Angebote wie dieses
Hier geht es zu unserem Impressum, den Allgemeinen Geschäftsbedingungen, den Hinweisen zum Datenschutz und nutzungsbasierter Online-Werbung.