

VON POLL IMMOBILIEN Gräfelfing - H & H Real Estate GmbH
Herr Sascha Hadeed
+49 ···
Nr. anzeigenPreise & Kosten
Provision für Käufer
Käuferprovision 3,00 % (inkl. MwSt.) des beurkundeten Kaufpreises.
Lage
Gräfelfing zählt zu den exklusivsten und beliebtesten Wohnorten im Münchner Westen. Die Gemeinde überzeugt durch ihre gewachsene Struktur, viel Grün und eine hohe Lebensqualität. Hier wohnen Sie in einem ruhigen, gepflegten Umfeld mit großzügigen Grundstücken, stilvollen Villen und einer angenehmen Nachbarschaft - ideal für...
Das Haus
Kategorie
Einfamilienhaus
Baujahr
1950
Energie & Heizung
Warum sehe ich diese Anzeige? – Du siehst diese Anzeige basierend auf Ihrer Navigation auf unserer Website und den Suchkriterien, die du verwendet hast.
Energieausweistyp
Verbrauchsausweis
Gebäudetyp
Wohngebäude
Baujahr laut Energieausweis
2005
Wesentliche Energieträger
GAS
Gültigkeit
bis 03.07.2035
Effizienzklasse
B
Endenergieverbrauch
70,15 kWh/(m²·a)
Weitere Energiedaten
Haustyp
Massivhaus
Energieträger
Gas
Heizungsart
offener Kamin, Zentralheizung
Details
Objektbeschreibung
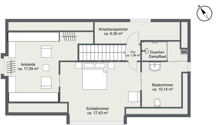
In einer der begehrtesten Lagen von Gräfelfing erwartet Sie dieses gepflegte Einfamilienhaus auf einem parkähnlich angelegten, uneinsehbaren Grundstück mit ca. 1.207 m² in sonniger Süd-West-Ausrichtung. Das Haus wurde 1950 errichtet und 2005 sowie 2008 umfassend kernsaniert. Es bietet rund 255 m² Wohnfläche und eine...
Ausstattung
* Parkähnlich eingewachsenes, uneinsehbares Grundstück mit ca. 1.207 m² in sonniger Süd-West-Ausrichtung
* Großzügige Wohnfläche von ca. 255 m², Gesamtwohn-/Nutzfläche ca. 416 m²
* Fünf gut geschnittene Schlafzimmer - ideal für große Familien
* Hochwertiges Eichen-Echtholzparkett
* Maßgefertigte...
Preisinformation
1 Garagenstellplatz
Weitere Informationen
Sonstiges
Es liegt ein Energieverbrauchsausweis vor.
Dieser ist gültig bis 3.7.2035.
Endenergieverbrauch beträgt 70.15 kwh/(m²*a).
Wesentlicher Energieträger der Heizung ist Gas.
Das Baujahr des Objekts lt. Energieausweis ist 2005.
Die Energieeffizienzklasse ist B.
Stichworte
Nutzfläche: 412,11 m²...
Anbieter der Immobilie

Online-ID: 2ndl955
Referenznummer: 25225032
Finde Angebote wie dieses
Hier geht es zu unserem Impressum, den Allgemeinen Geschäftsbedingungen, den Hinweisen zum Datenschutz und nutzungsbasierter Online-Werbung.