

Capital Concept Gesellschaft für Grund- besitz-und Kapitalanlagevermittlung mbH
Herr Lars Matthies
017 ···
Nr. anzeigenPreise & Kosten
Provision für Käufer
3,57% inkl. Ust.
Die Käuferprovision i.H.v. 3,57% inkl. Ust. ist auf den Kaufpreis zu zahlen. Die Provision ist mit Unterschrift des notariell beurkundeten Kaufvertrages verdient und fällig.
Lage
Die Wohnung befindet sich im Berliner Ortsteil Alt-Hohenschönhausen im Bezirk Lichtenberg. Die Umgebung ist geprägt von gewachsenen Wohnstrukturen mit einer guten Infrastruktur und kurzen Wegen für den täglichen Bedarf.
In der näheren Umgebung befinden sich zahlreiche Einkaufsmöglichkeiten, darunter Supermärkte...
Die Wohnung
Wohnungslage
4. Geschoss
Bezug
Sofort
Wohnanlage
Energie & Heizung
Warum sehe ich diese Anzeige? – Du siehst diese Anzeige basierend auf Ihrer Navigation auf unserer Website und den Suchkriterien, die du verwendet hast.
Energieausweistyp
Verbrauchsausweis
Gebäudetyp
Wohngebäude
Wesentliche Energieträger
Fernwärme
Gültigkeit
24.08.2018 bis 23.08.2028
Effizienzklasse
C
Endenergieverbrauch
82,20 kWh/(m²·a) - Warmwasser enthalten
Weitere Energiedaten
Energieträger
Fernwärme
Details
Objektbeschreibung
- Interaktiver 360°-Rundgang verfügbar -
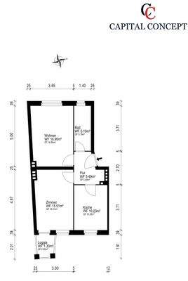
Im 3. Obergeschoss eines klassischen Berliner Mehrfamilienhauses aus den 1930er Jahren befindet sich diese helle 2-Zimmer-Wohnung mit einer Wohnfläche von ca. 54 m².
Das Gebäude wurde im Jahr 1997 umfassend kernsaniert und präsentiert sich bis heute in einem sehr gut...
Weitere Informationen
Sonstiges
Erstanfrage bitte NUR schriftlich mit Angabe aller Kontaktdaten.
Alle Angaben beruhen auf Informationen des Eigentümers, für welche wir keine Haftung übernehmen.
Stichworte
Anzahl der Badezimmer: 1, Anzahl Loggias: 1, Balkon-Terrassen-Fläche: 2,65 m², Bundesland: Berlin, 5 Etagen, modernisiert...
Anbieter der Immobilie
Capital Concept Gesellschaft für Grund- besitz-und Kapitalanlagevermittlung mbH
Lohmeyerstrasse 16, 10587 Berlin

Online-ID: 2ndhb5z
Referenznummer: CC GmbH-2396
Finde Angebote wie dieses
Hier geht es zu unserem Impressum, den Allgemeinen Geschäftsbedingungen, den Hinweisen zum Datenschutz und nutzungsbasierter Online-Werbung.