
Crozilla.com
BONUM IMMO - REAL ESTATE
+38 ···
Nr. anzeigenPreise & Kosten
Provision für Käufer
Bitte beachte, das Angebot kann bei Vertragsabschluss die Zahlung einer Provision beinhalten. Weitere Informationen erhältst Du vom Anbieter.
Das Haus
Baujahr
2024
Details
Objektbeschreibung
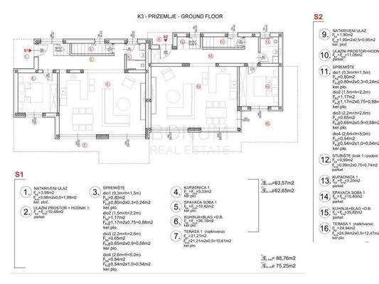
Zum Verkauf steht eine wunderschöne Luxus-Doppelhaushälfte mit unglaublichem Meerblick in Dolac, 2 km von Primosten und nur 500 Meter vom Meer entfernt. Das Haus bietet eine perfekte Kombination aus Luxus, Komfort und einer idealen Lage. Es erstreckt sich über zwei Etagen und verfügt über insgesamt 153,15 m² Nettofläche. Im...
Weitere Informationen
Stichworte
Anzahl der Schlafzimmer: 4, Anzahl der Badezimmer: 3, 1 Etagen
Anbieter der Immobilie
Crozilla.com
Nova cesta 60, 10000 ZAGREB
Online-ID: 2ndgx5h
Referenznummer: 19207284_1
Finde Angebote wie dieses
Hier geht es zu unserem Impressum, den Allgemeinen Geschäftsbedingungen, den Hinweisen zum Datenschutz und nutzungsbasierter Online-Werbung.