
S-Immobiliengesellschaft Holstein mbH &Co.KG
Herr Joachim Holz
045 ···
Nr. anzeigenPreise & Kosten
Provision für Käufer
3,57 % inkl. MwSt.
Lage
Die Ortschaft Pansdorf gehört zur Gemeinde Ratekau, die wiederum mit rund 15.000 Einwohnern zu den Großgemeinden im Kreis Ostholstein zählt. Sie umfasst eine Fläche von rund 60 qkm sowie 13 Dorfschaften. Pansdorf verfügt über eine umfassende Infrastruktur in allen Bereichen des täglichen Lebens und hat insbesondere durch ihr...
Die Wohnung
Bezug
nach Absprache
Wohnanlage
Energie & Heizung
Warum sehe ich diese Anzeige? – Du siehst diese Anzeige basierend auf Ihrer Navigation auf unserer Website und den Suchkriterien, die du verwendet hast.
Energieausweistyp
Bedarfsausweis
Gebäudetyp
Wohngebäude
Baujahr laut Energieausweis
2016
Wesentliche Energieträger
Fernwärme
Gültigkeit
14.07.2016 bis 13.07.2026
Effizienzklasse
B
Endenergiebedarf
64,00 kWh/(m²·a)
Weitere Energiedaten
Energieträger
Fernwärme
Heizungsart
Zentralheizung
Details
Objektbeschreibung
Kurzbeschreibung
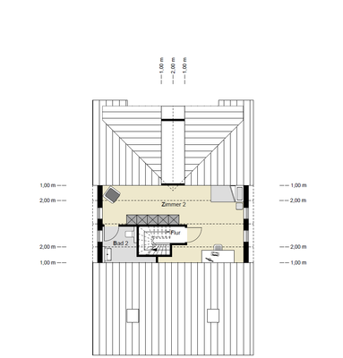
Große Eigentumswohnung- Wohnen auf 2 Ebenen mit Balkon + Garten
Objekt
Diese aparte 4-Zimmer-Eigentumswohnung (ca. 130 m²) befindet sich in einer ruhigen und idyllischen Lage in Pansdorf. Ideal für Familien oder Paare, die viel Platz und Komfort suchen.
Die großzügige Wohnung erstreckt sich...
Ausstattung
Kleine Wohneinheit mit nur zwei Einheiten, daher keine mtl. Wohngeldzahlungen
Zwei Wohnebenen in der Wohnung
Eigener Garten und Balkon in S/W Ausrichtung
Zwei Tageslichtbäder mit Dusche und Wanne
Carport
Weitere Informationen
Stichworte
Carport vorhanden, Anzahl der Badezimmer: 2, Anzahl Balkone: 1, Bundesland: Schleswig-Holstein
Anbieter der Immobilie
S-Immobiliengesellschaft Holstein mbH &Co.KG
Hagenstr. 19, 23843 Bad Oldesloe
Online-ID: 2ndfq5y
Referenznummer: 25-9325
Finde Angebote wie dieses
Hier geht es zu unserem Impressum, den Allgemeinen Geschäftsbedingungen, den Hinweisen zum Datenschutz und nutzungsbasierter Online-Werbung.