

Ihre Makler Immobilien GmbH
Frau Sonja Lange
017 ···
Nr. anzeigenPreise & Kosten
Provision für Käufer
3,57 % inkl. MwSt.
Das Haus
Kategorie
Einfamilienhaus
Baujahr
1930
Bezug
nach Absprache
Energie & Heizung
Warum sehe ich diese Anzeige? – Du siehst diese Anzeige basierend auf Ihrer Navigation auf unserer Website und den Suchkriterien, die du verwendet hast.
Energieausweistyp
Bedarfsausweis
Gebäudetyp
Wohngebäude
Baujahr laut Energieausweis
1930
Wesentliche Energieträger
ERDGAS_LEICHT
Gültigkeit
bis 17.03.2036
Effizienzklasse
F
Endenergiebedarf
175,30 kWh/(m²·a)
Weitere Energiedaten
Energieträger
Gas
Details
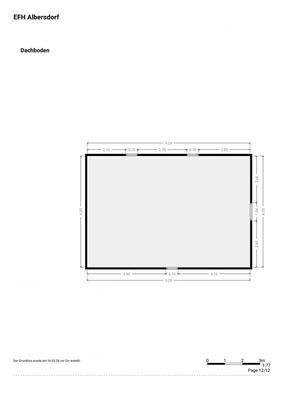
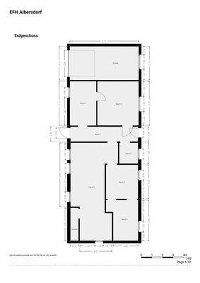
Objektbeschreibung
Stellen Sie sich vor, ein charmanter Altbau aus 1930, komplett entkernt 2022-2025 und somit roh und offen für Ihre vollständige Neugestaltung - eine Leinwand voller Potenzial, die nur auf handwerkliches Geschick wartet. In zentraler Lage gelegen, bietet die Immobilie 4 Räume, verteilt auf eine Fläche von 91,73 m² plus...
Ausstattung
- 2022-2025 Entkernt
- Dach 2021
- Elektrik 2022
- Fenster 2022 (teilweise noch nicht gesetzt)
- Gebrauchs-Abwasserleitungen 2021
- Geschossdecke bereits gedämmt
- Gastherme 2022
- WW-Speicher 2022 (noch nicht installiert)
- Garage (Dach gedämmt)
- 2 weitere Räume (Werkstatt o.Ä.)
-...
Preisinformation
1 Garagenstellplatz
Weitere Informationen
Stichworte
Anzahl der Schlafzimmer: 2, Anzahl der Badezimmer: 2, 2 Etagen, Distanz zum Kindergarten: 0.30, Distanz zur Grundschule: 0.60, Distanz zur Realschule: 1.10, Distanz zur nächsten Einkaufsmöglichkeit: 0.40, Distanz zum Gymnasium: 14.00, Distanz zum Hauptbahnhof: 14.00, Distanz zur Autobahn: 4.00, Distanz zum Bus...
Anbieter der Immobilie
Ihre Makler Immobilien GmbH
Podbielskistraße 333, 30659 Hannover

Online-ID: 2nde75z
Referenznummer: IM26034058
Finde Angebote wie dieses
Hier geht es zu unserem Impressum, den Allgemeinen Geschäftsbedingungen, den Hinweisen zum Datenschutz und nutzungsbasierter Online-Werbung.