
Evernest GmbH
Sandra Ince
+49 ···
Nr. anzeigenPreise & Kosten
Provision für Käufer
3.57 inkl. MwSt.
Bei Abschluss eines notariellen Kaufvertrages ist eine Käuferprovision vom Käufer in Höhe von 3.57 % inkl. MwSt. aus dem Kaufpreis fällig.
Lage
Die Immobilie befindet sich in Grassel, einem ruhigen und gewachsenen Ortsteil der Gemeinde Meine im Landkreis Gifhorn. Die Umgebung ist geprägt von Ein- und Zweifamilienhäusern, viel Grün sowie einer angenehmen, nachbarschaftlichen Struktur. Wer naturnah wohnen und dennoch gut angebunden sein möchte, findet hier eine...
Das Haus
Kategorie
Doppelhaushälfte
Baujahr
1972
Energie & Heizung
Warum sehe ich diese Anzeige? – Du siehst diese Anzeige basierend auf Ihrer Navigation auf unserer Website und den Suchkriterien, die du verwendet hast.
Energieausweistyp
Bedarfsausweis
Gebäudetyp
Wohngebäude
Effizienzklasse
G
Endenergiebedarf
246,30 kWh/(m²·a)
Weitere Energiedaten
Energieträger
Gas
Details
Objektbeschreibung
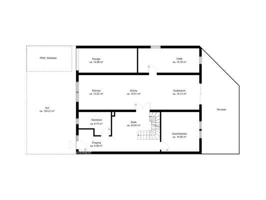
Zum Verkauf steht eine Doppelhaushälfte mit ca. 190 m² Wohnfläche auf einem 528 m² großen Grundstück.
Das Erdgeschoss wurde umfassend modernisiert und präsentiert sich in einem zeitgemäßen, ansprechenden Zustand. Der offen gestaltete Wohn- und Essbereich schafft ein helles, freundliches Wohnambiente. Ein moderner...
Ausstattung
- Garten
- Terrasse
- Garage
- Kamin
- Einbauküche
- Fußbodenheizung
Weitere Informationen
Stichworte
Parkhaus vorhanden, Anzahl der Schlafzimmer: 4, Anzahl der Badezimmer: 1, Anzahl der separaten WCs: 1, Anzahl Terrassen: 1, 2 Etagen
Anbieter der Immobilie
Online-ID: 2nde55p
Referenznummer: L-CEBWT37
Finde Angebote wie dieses
Hier geht es zu unserem Impressum, den Allgemeinen Geschäftsbedingungen, den Hinweisen zum Datenschutz und nutzungsbasierter Online-Werbung.