
Aengevelt Immobilien GmbH & Co KG
Herr Andre-Jannes Rebmann
+ 4 ···
Nr. anzeigenPreise & Kosten
Provision für Mieter
provisionsfrei
Warum sehe ich diese Anzeige? – Du siehst diese Anzeige basierend auf Ihrer Navigation auf unserer Website und den Suchkriterien, die du verwendet hast.
Lage
Der Logistikstandort in Langenweddingen zeichnet sich durch seine verkehrsgünstige Lage im Herzen Deutschlands aus und bietet optimale Anbindungen an wichtige Verkehrsachsen. Er liegt in unmittelbarer Nähe zur Bundesautobahn A14, die eine schnelle Verbindung in Richtung Magdeburg, Leipzig und Dresden bietet. Zudem besteht...
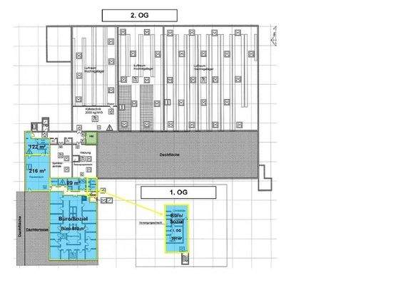
Die Industriefläche
Baujahr
1993
Bezug
sofort
Energie & Heizung
Warum sehe ich diese Anzeige? – Du siehst diese Anzeige basierend auf Ihrer Navigation auf unserer Website und den Suchkriterien, die du verwendet hast.
Weitere Energiedaten
Heizungsart
Zentralheizung
Details
Objektbeschreibung
Bei dem hier angebotenen Objekt handelt es sich um ein multifunktionales Logistikobjekt, mit einer durchdachten Flächenaufteilung und optimalen Andienungsmöglichkeiten. Die Andienung erfolgt dabei über zahlreiche Rampentore mit Überladebrücken sowie ebenerdige Tore, die eine ideale Nutzung für verschiedene Logistik- und...
Weitere Informationen
Sonstiges
Verkehrsanbindung:
Bundesstraße 81: ca. 600 m
BAB A2, AS Kreuz Magdeburg: ca. 16,9 km
BAB 14, AS Magdeburg-Sudenburg: ca. 5,6 km
Bahnhof Osterweddingen: ca. 6,4 km
Magdeburger Hauptbahnhof: ca. 14,7 km
Flughafen Leipzig/Halle: ca. 109 km
Stichworte
Stellplatz vorhanden, Lagerfläche...
Anbieter der Immobilie
Aengevelt Immobilien GmbH & Co KG
Kennedydamm 55/Ross-Strasse, 40476 Düsseldorf
Online-ID: 2nddu5y
Referenznummer: 8265878
Finde Angebote wie dieses
Hier geht es zu unserem Impressum, den Allgemeinen Geschäftsbedingungen, den Hinweisen zum Datenschutz und nutzungsbasierter Online-Werbung.