mh-Immobilien

Frau Monika Heinrich

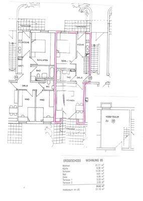
3-R-Wohnung mit Terrasse in Dresden-Weißig

€ 160.000
Kaufpreis
80,78 m²
Wohnfläche ca.
3
Zimmer

Der Anbieter dieses Objekts hat gegenüber der AVIV Germany GmbH als Betreiber dieses Online-Marktplatzes erklärt, nicht als Unternehmer im Sinne des § 1 KSchG zu handeln. Die im Verbraucherschutzrecht der Union verankerten Verbraucherrechte (insbesondere Informationspflichten und Rücktritts- bzw. Widerrufsrechte) finden auf den Vertrag zwischen dem Anbieter des Objekts und Ihnen (dem Interessenten) keine Anwendung.

Gewerblicher Anbieter

Der Anbieter dieses Objekts hat gegenüber der AVIV Germany GmbH als Betreiber dieses Online-Marktplatzes erklärt, als Unternehmer im Sinne des § 1 KSchG zu handeln.

AdresseStraße nicht freigegeben
01328 Dresden 
(Weißig)
Auf Karte ansehen

Preise & Kosten

Kaufpreis € 160.000 Hausgeld € 343

Provision für Käufer

3,57

Lage

Im Nord-Osten Dresdens, direkt an der Dresdener Heide liegt dieses sehr gefragte Wohngebiet. Es befindet sich im Hochland von Dresden.
Eine vorzügliche Infrastruktur (Einkaufsmöglichkeiten, Kindereinrichtungen, Schulen)
bietet alles was sich ein Bewohner wünscht.
Das Gebiet ist erreichbar mit dem öffentlichen...

Mehr anzeigen

Die Wohnung

Kategorie

Maisonette

Wohnungslage

Erdgeschoss

Derzeitige Nutzung

vermietet

  • Bad mit Wanne
  • Garten, Terrasse, Gartenanteil
  • barrierefrei
  • Böden: Fliesenboden, Teppichboden
  • Fenster: Kunststofffenster
  • Zustand: gepflegt
  • Weitere Räume: Kelleranteil, Wasch-Trockenraum
  • Anschlüsse: DSL-Anschluss, Kabelanschluss

Wohnanlage

  • Baujahr: 1995
  • 1 Stellplatz: Duplex, Tiefgarage

Energie & Heizung

A+
A
B
C
D
E
F
G
H
0 25 50 75 100 125 150 175 200 225 250 +

Energieausweistyp

Verbrauchsausweis

Gebäudetyp

Wohngebäude

Baujahr laut Energieausweis

1995

Wesentliche Energieträger

Erdgas

Gültigkeit

06.02.2018 bis 05.02.2028

Effizienzklasse

C

Endenergieverbrauch

80,00 kWh/(m²·a) - Warmwasser enthalten

Weitere Energiedaten

Energieträger

Gas

Heizungsart

Zentralheizung

Details

Objektbeschreibung

Objektbeschreibung
Dieses Objekt ist ein sehr gut gepflegtes Mehrfamilienhaus. Es ist umgeben von viel Grün und befindet sich im verkehrsberuhigten Gebiet von Weißig. Die Kunststofffenster sind mit Schallschutz ausgestattet.
Es ist ein DSL-Breitbandanschluß vorhanden.
Ein Fahrrad- und Trockenraum befinden sich im...

Mehr anzeigen

Weitere Informationen

Besichtigungstermine
Besichtigungen sind nach Vereinbarung möglich!

Stichworte
Sonstiges/Wohnen: Hobbyraum
Versorgung: Städtische Wasserversorgung, Städtische Stromversorgung

Anbieter der Immobilie

Partner

mh-Immobilien

im Durchschnitt  5,00  Sterne
(bei 1 Bewertungen)

Nordstr. 6, 01099 Dresden

user

Frau Monika Heinrich

Dein Ansprechpartner

Anbieter-Website Anbieter-Impressum

Online-ID: 2ndby5j

Finde Angebote wie dieses

imageimageimage

Hier geht es zu unserem Impressum, den Allgemeinen Geschäftsbedingungen, den Hinweisen zum Datenschutz und nutzungsbasierter Online-Werbung.