
ohne-makler.net - Immobilien selbst vermarkten
Privat von M. Acar
Kontaktiere den Anbieter schriftlich, es ist keine Telefonnummer hinterlegt.
Preise & Kosten
Provision für Käufer
provisionsfrei
Lage
Die Marktgemeinde Wendelstein liegt am südlichen Stadtrand von Nürnberg und bietet eine hervorragende Wohnlage mit familienfreundlicher Infrastruktur. Eine Grundschule, Gymnasium sowie ein Kindergarten befinden sich direkt vor Ort. Einkaufsmöglichkeiten für den täglichen Bedarf (diverse Supermärkte, Bäcker, etc.) sind im Ort...
Das Haus
Kategorie
Einfamilienhaus
Baujahr
2026
Bezug
nach Absprache
Energie & Heizung
Warum sehe ich diese Anzeige? – Du siehst diese Anzeige basierend auf Ihrer Navigation auf unserer Website und den Suchkriterien, die du verwendet hast.
Weitere Energiedaten
Heizungsart
Fußbodenheizung, Luft-/Wasser-Wärmepumpe, offener Kamin
Details
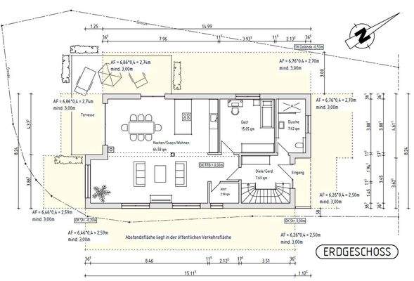
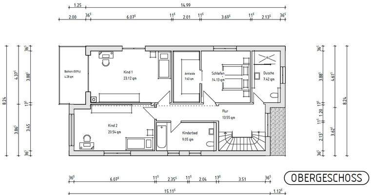
Objektbeschreibung
Ihr neues Zuhause wartet auf Sie!
In ruhiger und familienfreundlicher Lage von Wendelstein entsteht dieses stilvolle Ein- oder Zweifamilienhaus - ein echter Wohntraum mit vielen Möglichkeiten. Aktuell befindet sich das Haus im Rohbauzustand und kann ganz nach Ihren Wünschen entweder im jetzigen Zustand oder schlüsselfertig...
Ausstattung
Balkon, Terrasse, Garten, Keller, Duschbad, Gäste-WC, Kamin, Barrierefrei, Sonstiges (s. Text)
Bemerkungen:
.KfW 55-förderfähig - hervorragende Energieeffizienz, ideal für staatliche Förderprogramme
.Moderne Luft-Wärmepumpe als Heizsystem
.Dezentrale Lüftungsanlage für ein gesundes...
Preisinformation
1 Carportplatz
2 Stellplätze
Weitere Informationen
Sonstiges
Heizungsart: Fußbodenheizung
Energieträger: Luft-/Wasserwärme
Energieausweis nicht vorhanden
Alle Baukosten des aktuellen Bauzustandes inklusive Erschließung sowie sämtliche anfallenden Gebühren für Hausanschlüsse bei der Gemeinde sind im Angebot bereits enthalten. Die schlüsselfertige Fertigstellung...
Dokumente
Anbieter der Immobilie
ohne-makler.net - Immobilien selbst vermarkten
Humboldtstr. 25 A, 21509 Glinde
Privat von M. Acar
Dein Ansprechpartner
Kontaktiere den Anbieter schriftlich, es ist keine Telefonnummer hinterlegt.
Online-ID: 2ndaz5j
Referenznummer: 429603
Finde Angebote wie dieses
Hier geht es zu unserem Impressum, den Allgemeinen Geschäftsbedingungen, den Hinweisen zum Datenschutz und nutzungsbasierter Online-Werbung.