
Spormann Real Estate GmbH
Herr Bartosz Haluza
021 ···
Nr. anzeigenPreise & Kosten
Provision für Käufer
3,57 % des Kaufpreises inkl. MwSt.
Die Provision für den Käufer beträgt 3,57 % inkl. MwSt. Eine Vereinbarung in gleicher Höhe ist mit dem Verkäufer getroffen.
Lage
Garath befindet sich im äußersten Süden Düsseldorfs, dort, wo die Stadt spürbar ruhiger wird und der Übergang ins Grüne beginnt. Abseits des innerstädtischen Trubels genießt man hier ein entspanntes Wohnumfeld, ohne auf eine gute Infrastruktur verzichten zu müssen - alle Einrichtungen des täglichen Bedarfs liegen in...
Das Haus
Kategorie
Einfamilienhaus
Baujahr
1956
Bezug
sofort
Energie & Heizung
Warum sehe ich diese Anzeige? – Du siehst diese Anzeige basierend auf Ihrer Navigation auf unserer Website und den Suchkriterien, die du verwendet hast.
Energieausweistyp
Verbrauchsausweis
Gebäudetyp
Wohngebäude
Wesentliche Energieträger
Erdgas leicht
Gültigkeit
25.05.2025 bis 26.05.2035
Effizienzklasse
C
Endenergieverbrauch
97,09 kWh/(m²·a) - Warmwasser enthalten
Weitere Energiedaten
Heizungsart
Zentralheizung
Details
Objektbeschreibung
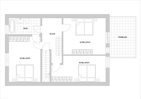
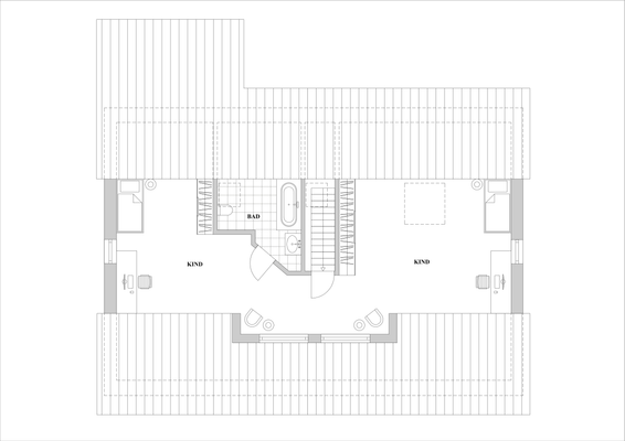
Dieses freistehende Einfamilienhaus bietet dank bereits vorhandener Planungen die Möglichkeit, bei Bedarf auch als Zweifamilienhaus genutzt zu werden. Auf rund 240 m² Wohnfläche und einem ca. 538 m² großen Grundstück eröffnet die Immobilie vielseitige Optionen zur Umsetzung individueller Wohn- und Nutzungskonzepte.
Der...
Ausstattung
+ Freistehendes Einfamilienhaus mit Option zur Nutzung als Zweifamilienhaus (Planung bereits vorhanden)
+ ca. 240 m² Wohnfläche zzgl. ca. 25 m² Nutzfläche
+ ca. 540 m² Grundstück inklusive angrenzendem Zusatzgrundstück
+ Ursprüngliches Baujahr ca. 1940 mit charakteristischem Gewölbekeller
+ Weitgehender Neubau /...
Weitere Informationen
Sonstiges
Hinweis: Teile der Außenaufnahmen wurden zur besseren Darstellung digital / durch die KI aufbereitet (z. B. Entfernung von Laub). Maßgeblich ist der Zustand bei der Besichtigung.
SPORMANN REAL ESTATE - https://www.spormann-realestate.com
Stichworte
Garage vorhanden, Stellplatz vorhanden...
Anbieter der Immobilie
Online-ID: 2nd9h5v
Referenznummer: V055004059557
Finde Angebote wie dieses
Hier geht es zu unserem Impressum, den Allgemeinen Geschäftsbedingungen, den Hinweisen zum Datenschutz und nutzungsbasierter Online-Werbung.