
Windisch Immobilien, Inh. Martin Windisch
Herr Jonas Walter
004 ···
Nr. anzeigenPreise & Kosten
Provision für Käufer
2,975 % inkl. 19 % MwSt.
Lage
ÜBER DACHAU
Dachau ist die große Kreisstadt im oberbayrischen Landkreis Dachau nordwestlich von München mit knapp unter 50.000 Einwohner. Außerdem ist der Landkreis von Flüssen und Seen, wie z.B. der Amper, durchzogen und zeichnet sich durch die Nähe zu München aus.
INFRASTRUKTUR
Dachau bietet alle...
Die Wohnung
Wohnungslage
Erdgeschoss
Bezug
Derzeit vermietet
Derzeitige Nutzung
vermietet
Wohnanlage
Energie & Heizung
Warum sehe ich diese Anzeige? – Du siehst diese Anzeige basierend auf Ihrer Navigation auf unserer Website und den Suchkriterien, die du verwendet hast.
Energieausweistyp
Bedarfsausweis
Gebäudetyp
Wohngebäude
Baujahr laut Energieausweis
1997
Wesentliche Energieträger
GAS
Gültigkeit
bis 03.04.2028
Effizienzklasse
C
Endenergiebedarf
97,90 kWh/(m²·a)
Weitere Energiedaten
Energieträger
Gas
Heizungsart
Zentralheizung
Details
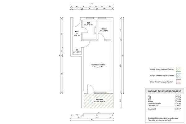
Objektbeschreibung
WINDISCH IMMOBILIEN präsentiert Ihnen dieses charmante und durchdacht geschnittene 1-Zimmer-Appartement mit ca. 39 m² Wohnfläche im Erdgeschoss eines gepflegten Mehrfamilienhauses aus dem Jahre 1997.
Beim Betreten der Wohnung gelangen Sie in die Diele mit Platz für eine Garderobe. Von hier aus erreichen Sie sowohl das...
Ausstattung
+ Flur mit Platz für eine Garderobe
+ Geräumiger Wohn-/ Schlafbereich
+ Hochwertiger Parkettboden im Wohnzimmer und im Flur
+ Separate Küche mit Einbauküche in L-Form
+ Zeitlos gefliestes Badezimmer mit Badewanne
+ Teilüberdachte Terrasse
+ Gemütlicher Garten mit Westausrichtung
+ Zusätzlich...
Preisinformation
1 Tiefgaragenstellplatz, Kaufpreis: 20.000,00 EUR
Weitere Informationen
Sonstiges
Es liegt ein Energiebedarfsausweis vor.
Dieser ist gültig bis 3.4.2028.
Endenergiebedarf beträgt 97.90 kwh/(m²*a).
Wesentlicher Energieträger der Heizung ist Gas.
Das Baujahr des Objekts lt. Energieausweis ist 1997.
Die Energieeffizienzklasse ist C.
Folgen Sie uns auf Instagram/Facebook für...
Anbieter der Immobilie
Online-ID: 2nd885r
Referenznummer: 3608
Finde Angebote wie dieses
Hier geht es zu unserem Impressum, den Allgemeinen Geschäftsbedingungen, den Hinweisen zum Datenschutz und nutzungsbasierter Online-Werbung.