
etc.pepe Plan GmbH
015 ···
Nr. anzeigenPreise & Kosten
Provision für Käufer
Bitte beachte, das Angebot kann bei Vertragsabschluss die Zahlung einer Provision beinhalten. Weitere Informationen erhältst Du vom Anbieter.
Lage
Die Wohnungen befindet sich inmitten der historischen Altstadt von Nördlingen, einer der wenigen vollständig erhaltenen und begehbaren Stadtmauern Europas. Die Kombination aus mittelalterlicher Struktur, gewachsener Infrastruktur und hoher Lebensqualität macht den Standort besonders attraktiv - sowohl für Eigennutzer als auch...
Das Haus
Bezug
Q4 2027
Energie & Heizung
Warum sehe ich diese Anzeige? – Du siehst diese Anzeige basierend auf Ihrer Navigation auf unserer Website und den Suchkriterien, die du verwendet hast.
Weitere Energiedaten
Heizungsart
Zentralheizung
Details
Objektbeschreibung
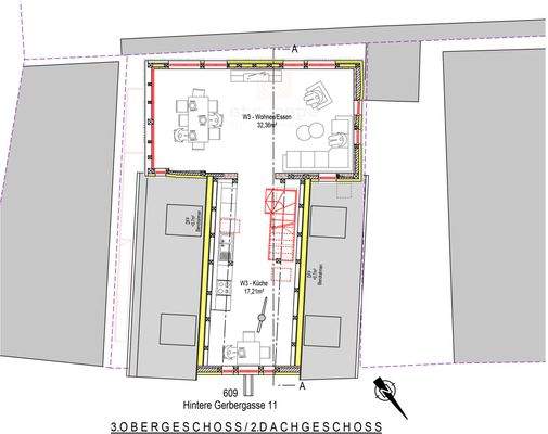
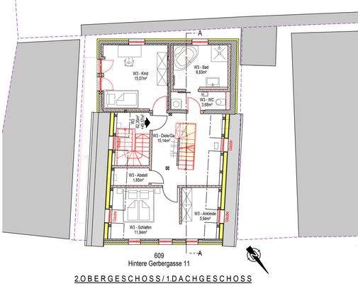
Zum Verkauf steht das gesamte denkmalgeschützte Wohnprojekt in zentraler Altstadtlage von Nördlingen mit einer geplanten Gesamtwohnfläche von ca. 248,42 m², verteilt auf drei eigenständige Wohneinheiten.
Die dargestellten Bilder sind visualisierte Beispielansichten nach geplanter Fertigstellung und wurden teilweise...
Ausstattung
Die Ausstattung orientiert sich an einem gehobenen, zeitlosen Standard:
Fußbodenheizung in allen Wohnräumen (alternativ Plattenheizkörper bei baulicher Notwendigkeit)
Zentral betriebene Hybrid-Heizungsanlage (Gas/Luft-Wärmetauscher)
Hochwertiger Bodenbelag nach Bemusterung
Modernes Bad mit...
Weitere Informationen
Sonstiges
Die Wohnungen werden schlüsselfertig im Rahmen einer denkmalgerechten Sanierung übergeben. Grundlage der Ausführung ist die detaillierte Baubeschreibung, welche die qualitative und technische Ausstattung verbindlich regelt.
Der Verkauf erfolgt im Ist-Zustand gemäß Teilungserklärung und notarieller...
Anbieter der Immobilie
Online-ID: 2nd885q
Referenznummer: 156
Finde Angebote wie dieses
Hier geht es zu unserem Impressum, den Allgemeinen Geschäftsbedingungen, den Hinweisen zum Datenschutz und nutzungsbasierter Online-Werbung.