
massa haus - Christian Lehmann
Herr Christian Lehmann
+49 ···
Nr. anzeigenPreise & Kosten
Provision für Käufer
provisionsfrei
Lage
Das Grundstück befindet sich in der Nähe des Bahnhofs von Langenhagen.
Bitte beachten: Auf Wunsch können wir mit Satteldach auch 2 Vollgeschosse + ausgebautem Dachgeschoss errichten (2,5 Geschosse) oder mit Keller bauen. Dies ist vor allem sinnvoll, wenn deutlich mehr Wohnfläche gewünscht wird.
Sollte Dir das...
Das Haus
Kategorie
Doppelhaushälfte
Baujahr
2026
Energie & Heizung
Warum sehe ich diese Anzeige? – Du siehst diese Anzeige basierend auf Ihrer Navigation auf unserer Website und den Suchkriterien, die du verwendet hast.
Weitere Energiedaten
Heizungsart
Fußbodenheizung
Details
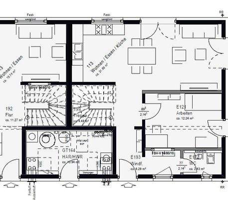
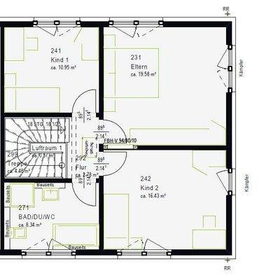
Objektbeschreibung
Nutze jetzt Deine einmalige Chance auf Dein Neubauprojekt / Doppelhaushälfte mit Massa Haus direkt in Langenhagen!
Freie Gestaltung gewünscht? Massa machts möglich!
Eigenleistung gewünscht? Willkommen bei Massa Haus!
Top- Preis/Leistungsverhältnis gewünscht? Mit einer Kapazität von bis zu 10 gebauten Häusern am...
Ausstattung
Was Dein Massa Haus ausmacht?
- Freie Grundrissgestaltung inklusive (Fenster & Wandverschiebungen)!
- höchste Energieeffizienz bis hin zum Passivhaus
- Sonderkonditionen bei der Finanzierung mit regulären Zinsnachlässen bis zu 0,9% sowie vielen weiteren Vorteilen!
- Baugrundstück
- Festpreisgarantie 15...
Weitere Informationen
Sonstiges
Der angebotene Grundriss passt nicht?
Wähle jetzt zwischen ca. 140 verschieden Haustypen, plane ein zusätzliches Anbauteil oder verlängere Dein Haus nach Belieben!
Das angebotene Grundstück passt nicht?
Jetzt gratis Grundstücksservice nutzen und von unserem Netzwerk aus Privatpersonen, Bauherren...
Dokumente
Anbieter der Immobilie
Online-ID: 2nd7f5t
Referenznummer: 1967-450-kw10-17956
Finde Angebote wie dieses
Hier geht es zu unserem Impressum, den Allgemeinen Geschäftsbedingungen, den Hinweisen zum Datenschutz und nutzungsbasierter Online-Werbung.