
ANGERMANN Real Estate Advisory AG
Nick Schneider
+49 ···
Nr. anzeigenPreise & Kosten
Provision für Mieter
provisionsfrei
Warum sehe ich diese Anzeige? – Du siehst diese Anzeige basierend auf Ihrer Navigation auf unserer Website und den Suchkriterien, die du verwendet hast.
Lage
Die Lage ist verkehrsgünstig, da sie in unmittelbarer Nähe zur Autobahn A3 liegt. Dies bietet eine hervorragende Anbindung an das regionale Autobahnnetz und ermöglicht schnelle Verbindungen zu umliegenden Städten wie Frankfurt, Offenbach und Darmstadt.
Büro-/Praxisfläche
Kategorie
Bürogebäude
Baujahr
1990
Geschoss
Erdgeschoss
Energie & Heizung
Warum sehe ich diese Anzeige? – Du siehst diese Anzeige basierend auf Ihrer Navigation auf unserer Website und den Suchkriterien, die du verwendet hast.
Wärme
Strom
Energieausweistyp
Verbrauchsausweis
Gebäudetyp
Nicht-Wohngebäude
Wesentliche Energieträger
GAS
Gültigkeit
seit 12.06.2014
Endenergieverbrauch (Wärme)
93,10 kWh/(m²·a)
Endenergieverbrauch (Strom)
53,10 kWh/(m²·a)
Details
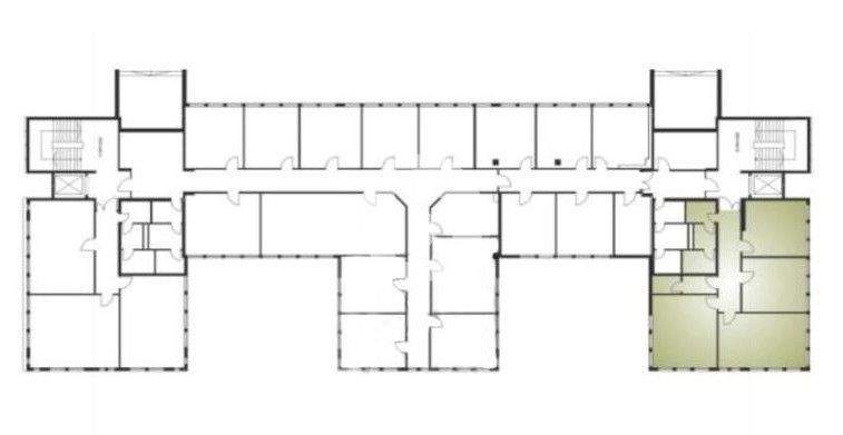
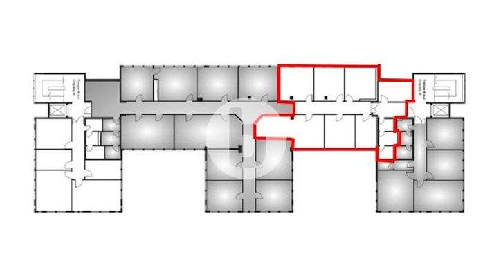
Objektbeschreibung
Das Objekt befindet sich in Heusenstamm. Dank der großen Fensterfronten, sind die Büroflächen hell und freundlich. Ausgestattet sind die Flächen u.a. mit außenliegendem Sonnenschutz, EDV-Verkabelung und Kühlung. Des Weiteren stehen PKW-Stellplätze zur Anmietung zur Verfügung.
Ausstattung
- außenliegender Sonnenschutz
- EDV-Verkabelung vorhanden
- Fenster öffenbar
- Kabelkanäle
Weitere Informationen
Stichworte
Sonstiges: EDV-Verkabelung
Anbieter der Immobilie
ANGERMANN Real Estate Advisory AG
Guiollettstraße 48, 60325 Frankfurt
Online-ID: 2nd5z5z
Referenznummer: 12407@13@0@63047
Finde Angebote wie dieses
Hier geht es zu unserem Impressum, den Allgemeinen Geschäftsbedingungen, den Hinweisen zum Datenschutz und nutzungsbasierter Online-Werbung.