
1a - Immobilien Dresden
Herr Maik Hertwig
+49 ···
Nr. anzeigenPreise & Kosten
Provision für Käufer
7,14% inkl. MwSt
Lage
Das Objekt befindet sich im Ortsteil Obercunnersdorf der Gemeinde Klingenberg in ruhiger und
naturnaher Umgebung. Die Lage zeichnet sich durch eine sehr hohe Wohnqualität aus. Der freie
Blick über Felder bis zum Tharandter Wald bietet ein außergewöhnliches Naturerlebnis direkt vor
der Haustür und sorgt für eine...
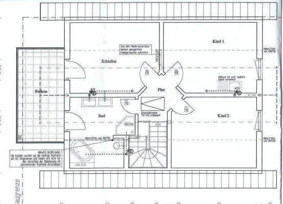
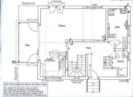
Das Haus
Kategorie
Einfamilienhaus
Geschosse
2 Geschosse
Baujahr
2010
Bezug
sofort
Derzeitige Nutzung
frei
Energie & Heizung
Warum sehe ich diese Anzeige? – Du siehst diese Anzeige basierend auf Ihrer Navigation auf unserer Website und den Suchkriterien, die du verwendet hast.
Weitere Energiedaten
Haustyp
Niedrigenergiehaus
Energieträger
Elektro, Erdwärme
Heizungsart
Luft-/Wasser-Wärmepumpe, Zentralheizung
Details
Objektbeschreibung
Dieses moderne und gepflegte Niedrigenergie-Einfamilienhaus befindet sich in ruhiger, naturnaher
Lage von Obercunnersdorf bei Klingenberg. Das großzügige Grundstück bietet einen
unverbaubaren Blick über weite Felder bis zum Tharandter Wald. Das im Jahr 2010 errichtete Haus
überzeugt durch hochwertige Bauweise...
Ausstattung
• Dachziegeleindeckung und gedämmte Außenfassade
• Kunststofffenster mit Isolierverglasung
• Edelholz-Innentüren und Ganzglastüren zum Wohnzimmer
• Laminatboden im Obergeschoss, Fliesen im Erdgeschoss, Marmor in den Bädern
• Offene Küche
• Wintergarten, Balkon und Terrasse
• Modern geflieste Badezimmer mit...
Weitere Informationen
Sonstiges
Das EFH wird mit Erdwärme beheizt. Keine
Heizkosten für Gas oder Öl. Die
Abwasserentsorgung erfolgt über eine
ökologische Kläranlage. Keine Kosten für
Abwasser. Die Wasserversorgung erfolgt über
das öffentliche Netz. Das Grundstück besitzt
zusätzlich einen eigenen Brunnen. Die Raumluft
wird...
Anbieter der Immobilie
Online-ID: 2nczy5w
Referenznummer: EFH/Klingenberg
Finde Angebote wie dieses
Hier geht es zu unserem Impressum, den Allgemeinen Geschäftsbedingungen, den Hinweisen zum Datenschutz und nutzungsbasierter Online-Werbung.