
ohne-makler.net - Immobilien selbst vermarkten
Privat vom Eigentümer
017 ···
Nr. anzeigenPreise & Kosten
Provision für Käufer
provisionsfrei
Lage
Lage - Urban angebunden, grün eingebettet
Die Boschetsriederstraße zählt zu den gefragtesten Wohnadressen im Münchner Süden - und vereint auf besondere Weise urbane Dynamik mit wohltuender Ruhe.
Ein zentrales Qualitätsmerkmal dieser Lage ist der geschützte, grün gestaltete Innenhof, der den Bewohnern eine...
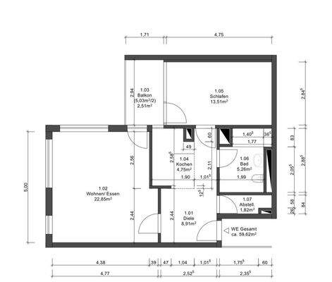
Die Wohnung
Wohnungslage
2. Geschoss
Bezug
sofort
Derzeitige Nutzung
vermietet
Wohnanlage
Energie & Heizung
Warum sehe ich diese Anzeige? – Du siehst diese Anzeige basierend auf Ihrer Navigation auf unserer Website und den Suchkriterien, die du verwendet hast.
Energieausweistyp
Verbrauchsausweis
Gebäudetyp
Wohngebäude
Effizienzklasse
C
Endenergieverbrauch
84,00 kWh/(m²·a)
Weitere Energiedaten
Energieträger
Gas
Heizungsart
Zentralheizung
Details
Objektbeschreibung
Herzlich willkommen in Ihrer stilvoll modernisierten 2-Zimmer-Wohnung im begehrten Münchner Stadtteil Thalkirchen!
Diese zeitlose Immobilie aus den 1990er Jahren befindet sich im 2. Obergeschoss einer äußerst gepflegten Wohnanlage und überzeugt durch ein harmonisches Zusammenspiel aus Komfort, Licht und urbaner...
Ausstattung
Balkon, Keller, Fahrstuhl, Duschbad, Einbauküche, Laminat, Fliesen
Bemerkungen:
Großzügige bodentiefe Glasfronten im Wohnzimmer
Für ein außergewöhnlich helles Wohnambiente mit viel Tageslicht und einem offenen Raumgefühl.
Sonniger Balkon mit Zugang vom Wohn- oder Schlafzimmer
Ideal für entspannte...
Preisinformation
1 Stellplatz, Kaufpreis: 14.500,00 EUR
1 Garagenstellplatz, Kaufpreis: 14.500,00 EUR
1 Tiefgaragenstellplatz, Kaufpreis: 14.500,00 EUR
Weitere Informationen
Sonstiges
Heizungsart: Zentralheizung
Energieträger: Gas
Makleranfragen nicht erwünscht. Nach § 7 UWG sind unaufgeforderte Kontaktaufnahmen durch Makler ohne ausdrückliche Einwilligung des Empfängers verboten!
ohne-makler (OM) ist weder Anbieter noch Vermittler der Immobilie. OM betreibt eine Plattform...
Dokumente
Anbieter der Immobilie
ohne-makler.net - Immobilien selbst vermarkten
Humboldtstr. 25 A, 21509 Glinde
Online-ID: 2ncxe5p
Referenznummer: 282980
Finde Angebote wie dieses
Weitere Immobilien
Hier geht es zu unserem Impressum, den Allgemeinen Geschäftsbedingungen, den Hinweisen zum Datenschutz und nutzungsbasierter Online-Werbung.