

Kreis-Sparkasse Northeim
Herr Dennis Friedrichs
055 ···
Nr. anzeigenPreise & Kosten
Provision für Käufer
3,57 % inkl. MwSt.
Lage
Der Flecken Bovenden ist eine Gemeinde im Landkreis Göttingen in Südniedersachsen. Große Bereiche des heutigen Flecken Bovenden decken sich dabei mit der früheren "Herrschaft Plesse". Die Bezeichnung Flecken ist offizieller Teil des Namens. Der Flecken Bovenden als aufstrebende Gemeinde mit über 14.000 Einwohnern liegt...
Das Objekt
Baujahr
1985
Frei ab
vermietet
Energie & Heizung
Warum sehe ich diese Anzeige? – Du siehst diese Anzeige basierend auf Ihrer Navigation auf unserer Website und den Suchkriterien, die du verwendet hast.
Energieausweistyp
Verbrauchsausweis
Gebäudetyp
Wohngebäude
Baujahr laut Energieausweis
1983
Wesentliche Energieträger
Gas
Gültigkeit
bis 08.04.2035
Effizienzklasse
D
Endenergieverbrauch
124,00 kWh/(m²·a)
Weitere Energiedaten
Energieträger
Gas
Haustyp
Holzhaus
Heizungsart
Zentralheizung
Details
Objektbeschreibung
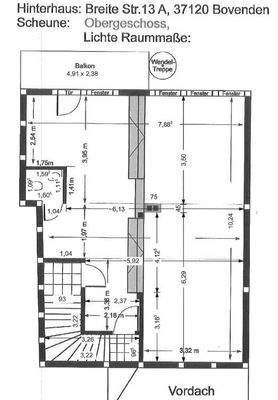
Herzlich willkommen zu diesem besonderen Objekt in der Hinterhofbebauung im Altdorf von Bovenden. Es handelt sich um eine ehemalige Scheune, die im Jahr 1985 umfangreich saniert und zu einem stilvollen Künstleratelier umgebaut wurde. Im Jahr 2014 wurde zudem eine moderne Gaszentralheizung installiert, die für angenehme Wärme...
Preisinformation
Ist-Mieteinnahmen pro Jahr: 7.380,00 EUR
Weitere Informationen
Sonstiges
VERBRAUCHERINFO
1. Maklerleistung ist der Nachweis der Gelegenheit zum Abschluss eines Vertrages bzw. Vermittlung eines Vertrages über eine Immobilie gegen die Courtagezahlungspflicht des Kunden
2. Unternehmer,Anschrift,Beschwerdeadressat
LBSi NordWest, Himmelreichallee 40, 48149 Münster...
Anbieter der Immobilie

Online-ID: 2ncwp5x
Referenznummer: 4196
Finde Angebote wie dieses
Hier geht es zu unserem Impressum, den Allgemeinen Geschäftsbedingungen, den Hinweisen zum Datenschutz und nutzungsbasierter Online-Werbung.