
ohne-makler.net - Immobilien selbst vermarkten
Privat von Christoph Bartke
Kontaktiere den Anbieter schriftlich, es ist keine Telefonnummer hinterlegt.
Preise & Kosten
Provision für Käufer
provisionsfrei
Lage
Die Wohnung befindet sich in einer äußerst beliebten und ruhigen Nebenstraße in Markdorf, der "freundlichen Stadt am Bodensee". Die Lage verbindet das Wohnen in einer grünen, beschaulichen Umgebung mit der optimalen Nahversorgung und exzellenten Verkehrsanbindung.
Ein herausragendes Merkmal dieser Lage ist die...
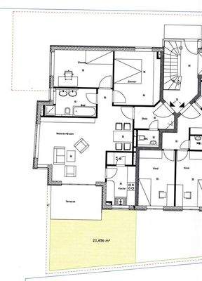
Die Wohnung
Wohnungslage
Erdgeschoss
Bezug
01.05.2026
Wohnanlage
Energie & Heizung
Warum sehe ich diese Anzeige? – Du siehst diese Anzeige basierend auf Ihrer Navigation auf unserer Website und den Suchkriterien, die du verwendet hast.
Energieausweistyp
Verbrauchsausweis
Gebäudetyp
Wohngebäude
Effizienzklasse
C
Endenergieverbrauch
89,00 kWh/(m²·a)
Weitere Energiedaten
Energieträger
Gas
Heizungsart
Zentralheizung
Details
Objektbeschreibung
Diese lichtdurchflutete, altersgerechte und barrierefreie 3,5-Zimmer-Eigentumswohnung, zurückgesetzt in der ruhigen Hahnstraße von Markdorf bietet Ihnen ein Höchstmaß an Komfort und Selbstständigkeit im Alter. Die Wohnung befindet sich in einem gepflegten Mehrfamilienhaus aus dem Jahr 2006 und wurde von Anfang an mit einem...
Ausstattung
Balkon, Terrasse, Garten, Keller, Fahrstuhl, Vollbad, Duschbad, Einbauküche, Gäste-WC, Barrierefrei, Parkett, Fliesen
Bemerkungen:
Diese Wohnung wurde nicht nur als "barrierefrei" geplant, sondern konsequent für höchsten Wohnkomfort im Alter oder mit Beeinträchtigung umgesetzt. Die Details machen den...
Preisinformation
1 Tiefgaragenstellplatz, Kaufpreis: 10.000,00 EUR
Weitere Informationen
Sonstiges
Heizungsart: Zentralheizung
Energieträger: Gas
.In die Wohnfläche von ca. 80 m² wurde mit halber Fläche der Terrasse eingerechnet.
.Ein großzügiges Kellerabteil ist im Kaufpreis inbegriffen.
.Das Hausgeld beträgt monatlich 490 €.
.Der Energieausweis liegt vor, Energieeffizienzklasse C...
Anbieter der Immobilie
ohne-makler.net - Immobilien selbst vermarkten
Humboldtstr. 25 A, 21509 Glinde
Privat von Christoph Bartke
Dein Ansprechpartner
Kontaktiere den Anbieter schriftlich, es ist keine Telefonnummer hinterlegt.
Online-ID: 2ncwh5w
Referenznummer: 436805
Finde Angebote wie dieses
Hier geht es zu unserem Impressum, den Allgemeinen Geschäftsbedingungen, den Hinweisen zum Datenschutz und nutzungsbasierter Online-Werbung.