

Krams Immobilien GmbH
Frau Melanie Verkamp
004 ···
Nr. anzeigenPreise & Kosten
Kaution
2.860,00
Warum sehe ich diese Anzeige? – Du siehst diese Anzeige basierend auf Ihrer Navigation auf unserer Website und den Suchkriterien, die du verwendet hast.
Lage
Die Wohnung liegt in unmittelbarer Nähe zum Bahnhof sowie zum zentralen Omnibusbahnhof und bietet Ihnen somit eine hervorragende Anbindung an den öffentlichen Nahverkehr. Auch mit dem Auto profitieren Sie von einer idealen Verkehrsanbindung, unter anderem über die B27 Richtung Tübingen, Metzingen und Stuttgart.
Für...
Die Wohnung
Wohnungslage
2. Geschoss
Bezug
01.05.2026
Wohnanlage
Energie & Heizung
Warum sehe ich diese Anzeige? – Du siehst diese Anzeige basierend auf Ihrer Navigation auf unserer Website und den Suchkriterien, die du verwendet hast.
Weitere Energiedaten
Energieträger
Gas
Heizungsart
Zentralheizung
Details
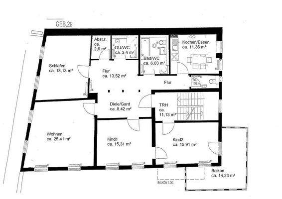
Objektbeschreibung
Diese großzügige 4-Zimmer-Wohnung vereint urbanes Wohnen mit viel Platz und Komfort. Auf ca. 127 m² Wohnfläche erwarten Sie helle, lichtdurchflutete Räume mit hohen Decken, die ein besonderes Gefühl von Weite und Wohnqualität vermitteln.
Das Badezimmer ist mit hellen Fliesen gestaltet und verfügt über eine Badewanne...
Ausstattung
- 2007 Grundsaniert
- Hohe Decken (ca. 2,80 m)
- Parkettböden in den Wohnräumen
- Badezimmer mit Badewanne, zwei Waschbecken und Waschmaschinenanschluss
- Zusätzliches Badezimmer mit einer Dusche
- Separates Gäste-WC
- Wohnküche mit heller Einbauküche
- Balkon mit ca. 14 m²
- Praktischer Abstellraum...
Preisinformation
1 Garagenstellplatz, Miete: 70,00 EUR
Weitere Informationen
Stichworte
Anzahl der Badezimmer: 2
Anbieter der Immobilie
Krams Immobilien GmbH
Kaiserpassage 9, 72764 Reutlingen

Online-ID: 2ncvv5e
Referenznummer: 8284
Finde Angebote wie dieses
Hier geht es zu unserem Impressum, den Allgemeinen Geschäftsbedingungen, den Hinweisen zum Datenschutz und nutzungsbasierter Online-Werbung.