
Tönjes Immobilien
Herr Frank Tönjes
041 ···
Nr. anzeigenPreise & Kosten
Provision für Käufer
3,57 %
Die Provision beträgt für den Käufer und den Verkäufer jeweils 3,57 % inkl. 19 % MwSt. auf den Kaufpreis. Wir weisen auf unsere Tätigkeit für beide Vertragspartner (Käufer und Verkäufer) hin.
Lage
Die Immobilie befindet sich in dem Lüneburger Stadtteil Oedeme, in der Nähe des Lüneburger Klinikums und des Schulzentrums Oedeme. Sie zeichnet sich durch eine gute Anbindung an die städtische Infrastruktur aus.
Lüneburg zählt zu den attraktivsten Wohnstandorten Norddeutschlands und verbindet historischen Charme mit...
Das Haus
Kategorie
Doppelhaushälfte
Bezug
sofort
Energie & Heizung
Warum sehe ich diese Anzeige? – Du siehst diese Anzeige basierend auf Ihrer Navigation auf unserer Website und den Suchkriterien, die du verwendet hast.
Energieausweistyp
Bedarfsausweis
Gebäudetyp
Wohngebäude
Wesentliche Energieträger
Gas
Gültigkeit
21.01.2026 bis 21.01.2036
Effizienzklasse
H
Endenergiebedarf
291,10 kWh/(m²·a)
Weitere Energiedaten
Energieträger
Gas
Heizungsart
offener Kamin
Details
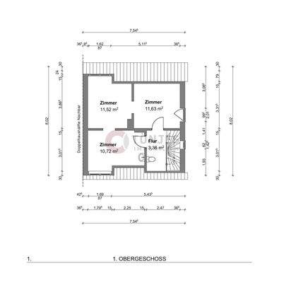
Objektbeschreibung
Die angebotene Doppelhaushälfte überzeugt durch ihre gute Raumaufteilung und die attraktive Lage.
Das ursprüngliche Baujahr des Hauses ist nicht bekannt; die erste Bauakte stammt aus dem Jahr 1926. Im Jahr 1961 wurde ein Anbau realisiert, in dem sich der Windfang sowie das Badezimmer mit Dusche und WC befinden. Das...
Ausstattung
- Wohnfläche ca. 123 m²
- 6 Zimmer
- Grundstücksgröße: 655 m² großes Grundstück (Erbbaurecht)
- Terrasse
- Keller mit Außenzugang
- 2 Garagenplätze auf dem Hof (von 1939)
- Gasheizung (Firma Junkers) von 1992
- Erbpachtgrundstück: Laufzeit bis 18.07.2103 (77 Jahre verbleibend) /
aktuell 4.237,24...
Preisinformation
1 Stellplatz
Weitere Informationen
Sonstiges
Bei Exposéanfragen und Besichtigungswünschen bitten wir Sie um die Angabe Ihrer "vollständigen Kontaktdaten" inklusive Ihrer Telefonnummer, damit wir Ihre Anfrage bearbeiten können.
Besichtigungstermine sind grundsätzlich mit der Firma Tönjes Immobilien abzustimmen.
Sämtliche Informationen wurden...
Anbieter der Immobilie
Tönjes Immobilien
An der Münze 2, 21335 Lüneburg
Online-ID: 2ncve5k
Referenznummer: 2275
Finde Angebote wie dieses
Hier geht es zu unserem Impressum, den Allgemeinen Geschäftsbedingungen, den Hinweisen zum Datenschutz und nutzungsbasierter Online-Werbung.