

GEOTEAM Immobilien GmbH
Herr Frederic Zoll
Kontaktiere den Anbieter schriftlich, es ist keine Telefonnummer hinterlegt.
Preise & Kosten
Provision für Käufer
3,57% inkl. MwSt. inkl. MwSt.
Die Käuferprovision beträgt 3,57?% des Kaufpreises inkl. 19% gesetzlicher Mehrwertsteuer.
Abschreibung/Anlage
Denkmalschutz-Afa
Lage
Die Lage der Immobilie in der Kreuzsteinallee gehört zweifellos zu den attraktivsten Aspekten dieses Angebots. Die Kreuzsteinallee überzeugt durch eine städtisch geprägte und gut angebundene Wohnlage. Insbesondere die Weitsicht verleiht dem Wohnen eine besondere Exklusivität und Ruhe, während das Stadtzentrum dennoch in...
Das Haus
Kategorie
Einfamilienhaus
Baujahr
1919
Bezug
sofort
Energie & Heizung
Warum sehe ich diese Anzeige? – Du siehst diese Anzeige basierend auf Ihrer Navigation auf unserer Website und den Suchkriterien, die du verwendet hast.
Energieausweis: für diesen Gebäudetyp nicht notwendig
Weitere Energiedaten
Energieträger
Gas
Details
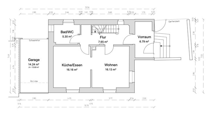
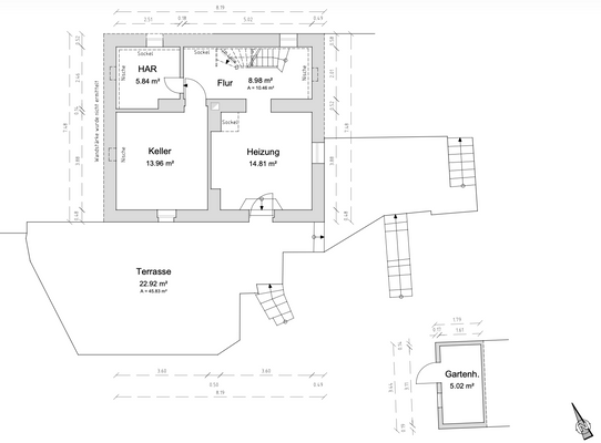
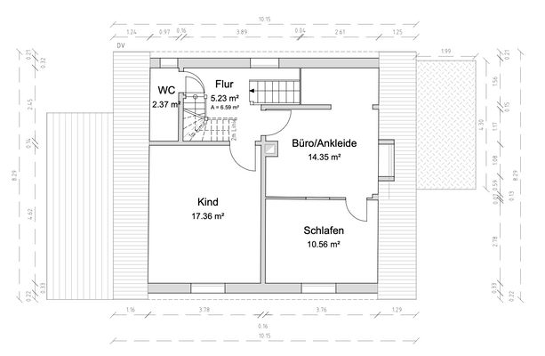
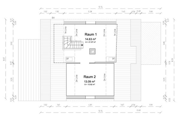
Objektbeschreibung
Dieses ungefähr im Jahr 1923 in charakteristischer Architektur errichtete charmante und denkmalgeschützte Einfamilienhaus in der Kreuzsteinallee 23 in Pforzheim zählt zu den besonderen Seltenheiten auf dem Pforzheimer Immobilienmarkt. Es bietet die perfekte Gelegenheit für Individualisten und Liebhaber historischer...
Ausstattung
Während das Haus im Inneren auf seine finale Renaissance wartet, wurde in die äußere Substanz bereits investiert, um den Werterhalt langfristig zu sichern. So wurden gemäß Angaben des Verkäufers bereits die Fenster (2016, Kunststoff, 2-fach verglast) sowie im Bereich der oberen Stockwerke die Fassade (2010, inkl. Dämmung) und...
Preisinformation
1 Garagenstellplatz
Weitere Informationen
Sonstiges
Wir freuen uns auf Ihre Anfrage.
Das Angebot ist freibleibend und unverbindlich; alle Informationen und Daten wurden nach bestem Wissen erstellt und beruhen auf Angaben unserer Auftraggeber. Als Rechtsgrundlage gilt allein der notariell beurkundete Kaufvertrag. Für die Richtigkeit der Angaben wird keine...
Dokumente
Anbieter der Immobilie
GEOTEAM Immobilien GmbH
Ahornweg 7, 75331 Engelsbrand

Herr Frederic Zoll
Dein Ansprechpartner
Kontaktiere den Anbieter schriftlich, es ist keine Telefonnummer hinterlegt.
Online-ID: 2ncsu5s
Referenznummer: 154832058#1iw4nT
Finde Angebote wie dieses
Hier geht es zu unserem Impressum, den Allgemeinen Geschäftsbedingungen, den Hinweisen zum Datenschutz und nutzungsbasierter Online-Werbung.