

DAHLER Potsdam | Berlin-Wannsee | Kleinmachnow
Herr Phillip Carstens
033 ···
Nr. anzeigenPreise & Kosten
Provision für Käufer
3,57% inkl. MwSt. bezogen auf den beurkundeten Kaufpreis
Lage
Diese exklusive Immobilie erfreut sich einer erstklassigen Lage im beliebten Wilhelmshorst, einem prominenten Ortsteil von Michendorf, im Landkreis Potsdam-Mittelmark. Die Gemeinde Michendorf liegt malerisch umgeben von dichten Wäldern und grenzt im Süden an den ausgedehnten Seddiner See, der Freizeitaktivitäten in...
Das Haus
Kategorie
Villa
Baujahr
2015
Bezug
Nach Absprache
Energie & Heizung
Warum sehe ich diese Anzeige? – Du siehst diese Anzeige basierend auf Ihrer Navigation auf unserer Website und den Suchkriterien, die du verwendet hast.
Energieausweistyp
Verbrauchsausweis
Gebäudetyp
Wohngebäude
Baujahr laut Energieausweis
2015
Wesentliche Energieträger
LUFTWP
Gültigkeit
bis 21.11.2033
Effizienzklasse
D
Endenergieverbrauch
123,70 kWh/(m²·a)
Weitere Energiedaten
Heizungsart
Fußbodenheizung, Luft-/Wasser-Wärmepumpe, offener Kamin
Details
Objektbeschreibung
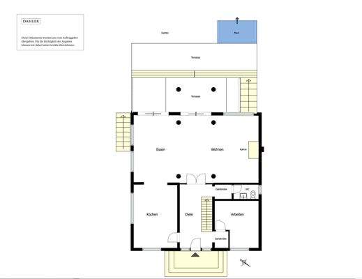
In der begehrten Wohnlage von Wilhelmshorst, nahe Potsdam und Berlin, erwartet Sie eine mediterrane Villa mit zahlreichen Annehmlichkeiten. 2015 auf einem ca. 1.140 m² großen Grundstück erbaut, bietet sie vollkommene Privatsphäre.
Die repräsentative Einfahrt führt durch ein elektrisch gesteuertes schmiedeeisernes Tor...
Ausstattung
* Neubauvilla im mediterranen Stil auf 1.140 m² großem Grundstück in kompletter Privatsphäre
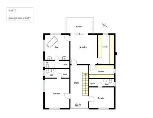
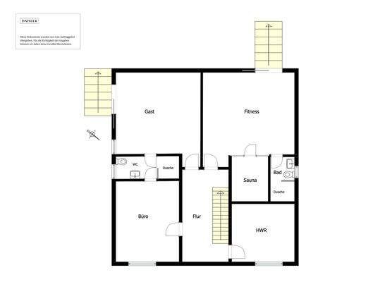
* ca. 410 m² Wohn-/Nutzfläche auf drei Etagen und 9 Zimmer und 6 Bäder verteilt
* Lichtdurchfluteter Eingangsbereich mit massiven Stahlbetontreppen, mit Marmor belegt und Rundsäulen
* Küche mit großer Granitplatte sowie...
Preisinformation
3 Stellplätze
2 Garagenstellplätze
Weitere Informationen
Sonstiges
Ihre Werte sind bei uns in besten Händen
DAHLER ist auf die Vermittlung hochwertiger Wohnimmobilien in bevorzugten Lagen spezialisiert. Seit über 30 Jahren wird unser Unternehmen von Kirsten und Björn Dahler geführt und setzt mit Innovationskraft und Servicequalität Maßstäbe in der Branche. Unsere mehr als...
Anbieter der Immobilie

Online-ID: 2ncs35y
Referenznummer: D-POT6525-20-LIV
Finde Angebote wie dieses
Hier geht es zu unserem Impressum, den Allgemeinen Geschäftsbedingungen, den Hinweisen zum Datenschutz und nutzungsbasierter Online-Werbung.