
Die Maklerwerkstatt Immobilienmarketing & Vertrieb
Herr Nicolai Müller
+49 ···
Nr. anzeigenPreise & Kosten
Kaution
8850,00
Warum sehe ich diese Anzeige? – Du siehst diese Anzeige basierend auf Ihrer Navigation auf unserer Website und den Suchkriterien, die du verwendet hast.
Lage
Karlsruhe ist mit knapp 312.000 Einwohnern die zweitgrößte Stadt in Baden-Württemberg und liegt mit seiner Nähe zu Frankreich, dem Schwarzwald und der Pfalz in einer traumhaften geographischen Lage. Verbunden mit dem milden Klima, den vielen Sonnenstunden und einer Vielzahl an Grünflächen und Parks bietet Karlsruhe eine sehr...
Das Haus
Kategorie
Stadthaus
Baujahr
2022
Bezug
sofort
Energie & Heizung
Warum sehe ich diese Anzeige? – Du siehst diese Anzeige basierend auf Ihrer Navigation auf unserer Website und den Suchkriterien, die du verwendet hast.
Energieausweistyp
Bedarfsausweis
Gebäudetyp
Wohngebäude
Baujahr laut Energieausweis
1910
Gültigkeit
16.08.2023 bis 16.08.2033
Effizienzklasse
B
Endenergiebedarf
66,30 kWh/(m²·a)
Weitere Energiedaten
Energieträger
Gas
Details
Objektbeschreibung
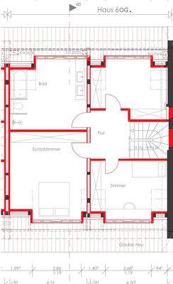
Im HOFGARTEN KARREE (Remise III) in Karlsruhe-Nordweststadt wird ein außergewöhnliches Stadthaus (Haus 6) mit ca. 183 m² Gesamtwohnfläche zur Vermietung angeboten.
Das Ensemble verbindet historische Bausubstanz (ehemalige Artilleriekaserne / Remisen) mit moderner Wohnqualität und einer privaten, parkähnlichen Grünanlage...
Ausstattung
Raumaufteilung:
Erdgeschoss – Ankommen, Arbeiten und Wohnen
Im Erdgeschoss empfängt Sie ein angenehm geschnittener Eingangsbereich mit einem Vorbereich außen. Direkt im Entrée liegt das Gäste-Bad mit Dusche – praktisch platziert, ohne den Wohnbereich zu berühren.
Ein separates Arbeits-/Gästezimmer schafft...
Weitere Informationen
Sonstiges
Ansprechpartner:
Nicolai Müller
Tel. +49 176 323 56 296
E-Mail: n.mueller@gem-gruppe.com
Besichtigung:
Nach Absprache möglich
WICHTIGER HINWEIS :
Bei Interesse bitten wir Sie vorab eine schriftliche Anfrage zu mailen.
Bitte füllen Sie dazu das Anfrageformular VOLLSTÄNDIG...
Dokumente
Anbieter der Immobilie
Die Maklerwerkstatt Immobilienmarketing & Vertrieb
Mainzer Str. 34, 55411 Bingen
Online-ID: 2ncrz5b
Referenznummer: KA-Remise_6e
Finde Angebote wie dieses
Hier geht es zu unserem Impressum, den Allgemeinen Geschäftsbedingungen, den Hinweisen zum Datenschutz und nutzungsbasierter Online-Werbung.