

Sparkasse Forchheim in Vertretung der Sparkassen-Immobilien-Vermittlungs-GmbH
Herr Niki Thäter
091 ···
Nr. anzeigenPreise & Kosten
Provision für Käufer
3,57 % inkl. MwSt.
Lage
Hiltpoltstein liegt an der B 2 zwischen Nürnberg und Bayreuth am Rand der Fränkischen Schweiz. Die Entfernung ins Nürnberger Zentrum beträgt rund 33 km, nach Bayreuth etwa 50 km. Forchheim liegt ca. 25 km entfernt und Erlangen ca. 30 km. Die Auffahrt auf die A 9 liegt in ca. 10 km Entfernung.
Hiltpoltstein ist ein Teil...
Das Haus
Kategorie
Doppelhaushälfte
Baujahr
1950
Energie & Heizung
Warum sehe ich diese Anzeige? – Du siehst diese Anzeige basierend auf Ihrer Navigation auf unserer Website und den Suchkriterien, die du verwendet hast.
Energieausweistyp
Bedarfsausweis
Gebäudetyp
Wohngebäude
Baujahr laut Energieausweis
1950
Wesentliche Energieträger
Gas
Gültigkeit
03.03.2026 bis 02.03.2036
Effizienzklasse
H
Endenergiebedarf
356,90 kWh/(m²·a)
Weitere Energiedaten
Haustyp
Massivhaus
Energieträger
Gas
Heizungsart
offener Kamin, Zentralheizung
Details
Objektbeschreibung
Das Anwesen ist in der Häuserchronik von Hiltpoltstein erstmals um die Jahre 1830 erwähnt, der jetzige Bautenstand spiegelt die Um-/Ausbauten seit den 50er Jahren.
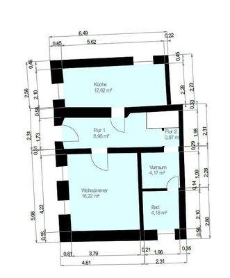
Die Doppelhaushälfte ist klassisch aufgeteilt und bietet alles was ein Haus so braucht. Im Erdgeschoss sind das Wohnzimmer, die Küche mit Essecke und das...
Ausstattung
Außenfassade renoviert
6 Kunststofffenster mit Rollläden; zudem noch 3 Holzfenster
Zentralheizung mit Gastherme
eigener Gastank
zweiter Kamin für möglichen Schwedenofen im Wohnzimmer und/oder Küche
Weitere Informationen
Stichworte
Garage vorhanden, Nutzfläche: 10,00 m², Anzahl der Schlafzimmer: 2, Anzahl der Badezimmer: 1, Bundesland: Bayern
Anbieter der Immobilie
Sparkasse Forchheim in Vertretung der Sparkassen-Immobilien-Vermittlungs-GmbH
Klosterstr. 14, 91301 Forchheim

Online-ID: 2ncrj5y
Referenznummer: 1/20/214-214/010926
Finde Angebote wie dieses
Hier geht es zu unserem Impressum, den Allgemeinen Geschäftsbedingungen, den Hinweisen zum Datenschutz und nutzungsbasierter Online-Werbung.