
E + V Hamburg Immobilien GmbH
Team Engel & Völkers Hamburg Alster
+49 ···
Nr. anzeigenPreise & Kosten
Provision für Käufer
6.25 % inkl. gesetzl. MwSt. Weitere Informationen siehe Provisionshinweis.
Abschreibung/Anlage
Denkmalschutz-Afa
Lage
Die repräsentative Stadtvilla ist in unmittelbarer Nähe zum Alsterpark, in Mitten gepflegter Umgebung, gelegen. Das Objekt befindet sich in einer der besten Wohnlagen Hamburgs, im beliebten Stadtteil Harvestehude. Die Nähe zur Außenalster, zu öffentlichen Verkehrsmitteln und Sportclubs sowie die vielfältigen...
Das Haus
Kategorie
Villa
Baujahr
1900
Energie & Heizung
Warum sehe ich diese Anzeige? – Du siehst diese Anzeige basierend auf Ihrer Navigation auf unserer Website und den Suchkriterien, die du verwendet hast.
Energieausweis: für diesen Gebäudetyp nicht notwendig
Weitere Energiedaten
Energieträger
Fernwärme
Details
Objektbeschreibung
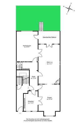
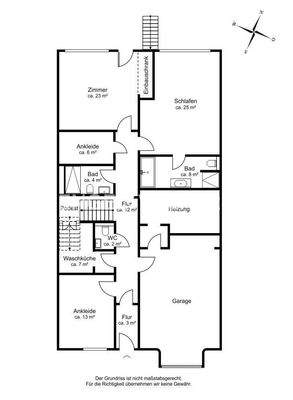
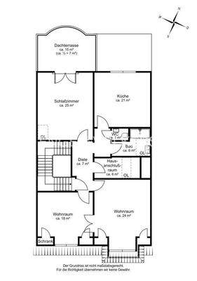
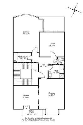
- Die weiße, elegante Stadtvilla verfügt zurzeit über 3 separate Wohnungen. Das Hochparterre und das 1. Obergeschoss werden frei geliefert, das 2. Obergeschoss ist zur Zeit vermietet
- Die prachtvollen Räume im Erdgeschoss haben sehr schöne Stuckdecken
- Elegante Rundbogenfenster und viele alte Stilelemente wurden sehr...
Weitere Informationen
Provisionshinweis
6.25 % inkl. gesetzl. MwSt.
Sie sind selbst Eigentümer und möchten erfahren, wie sich der Wert Ihrer eigenen Immobilie entwickelt hat? Gerne erstellen wir für Sie eine professionelle Marktbewertung und unterstützen Sie kompetent und zuverlässig beim erfolgreichen Verkauf Ihrer Immobilie. Für weitere...
Anbieter der Immobilie
E + V Hamburg Immobilien GmbH
Stadthausbrücke 5, 20355 Hamburg
Online-ID: 2ncqf5k
Referenznummer: I-02PJQR-W-02PJQR
Finde Angebote wie dieses
Hier geht es zu unserem Impressum, den Allgemeinen Geschäftsbedingungen, den Hinweisen zum Datenschutz und nutzungsbasierter Online-Werbung.