
Werde Eigentümer GmbH
Herr Sebastian Ghesquier
+49 ···
Nr. anzeigenPreise & Kosten
Provision für Käufer
Provisionsfrei für die Kaufenden
Provisionsfrei für die Kaufenden.
Lage
ENTSPANNT WOHNEN MIT PARK-ANSCHLUSS
Als Wohnbezirk zählt Charlottenburg-Wilmersdorf zu den begehrtesten Adressen in Berlin. Und der schöne Volkspark Wilmersdorf mit dem idyllischen Fennsee liegt nicht nur zentral im Bezirk, sondern sozusagen direkt vor Ihrem Fenster: der Eingang zum Park befindet sich nicht einmal 100...
Die Immobilie
Zu diesem Angebot wurden vom Anbieter keine weiteren Daten hinterlegt. Für weitere Informationen bitte den Anbieter kontaktieren.
Nach Informationen fragenDetails
Objektbeschreibung
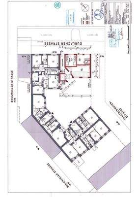
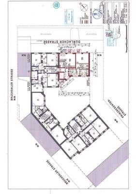
Zum Verkauf steht hier ein äußerst attraktiver Bauplatz mit Aufstockungsoption am Bestandsgebäude direkt am Wilmersdorfer Park. Die vorliegende Baugenehmigung sieht insgesamt 8 neue Wohneinheiten und eine Gewerbeeinheit vor. Dabei sind die Grundrissvarianten verkaufsoptimiert sehr breit gefächert: vom 30m² Apartment bis zur...
Ausstattung
Wichtige Zusatzinformationen
- Alle Fenster im Bestandsgebäude dürfen entsprechend der Genehmigung zugebaut werden. Dies ist mit allen Eigentümer:Innen vereinbart.
- In der TE sind die Regelungen zum Neubau in der Ur 1096 aus 2022 in festgehalten.
- In §3 Nr. 10a-f der UR1096...
Weitere Informationen
Sonstiges
Dieses Angebot richtet sich an professionelle Bauträger und Planungsbüros.
Die Bilder zeigen den aktuellen Zustand des Gebäudes. Die durch die WEG im Bestandsgebäude durchgeführten und in Planung befindlichen Maßnahmen sind im Preis bereits enthalten.
Objekt-Homepage -...
Anbieter der Immobilie
Werde Eigentümer GmbH
Töpferwall 2a, 17207 Röbel/Müritz
Online-ID: 2ncns5s
Referenznummer: WE260306-01-WE40
Finde Angebote wie dieses
Hier geht es zu unserem Impressum, den Allgemeinen Geschäftsbedingungen, den Hinweisen zum Datenschutz und nutzungsbasierter Online-Werbung.