
Johannes Ganz Immobilien GmbH
Herr Tim Albietz
Kontaktiere den Anbieter schriftlich, es ist keine Telefonnummer hinterlegt.
Preise & Kosten
Provision für Käufer
3,57% inkl. MwSt.
Lage
Die Wohnung befindet sich in ruhiger und begehrter Wohnlage in der Straße Brunnacker 1 in Merzhausen, einer der beliebtesten Gemeinden im direkten Süden von Freiburg im Breisgau. Merzhausen überzeugt durch seinen charmanten, dörflichen Charakter in Kombination mit einer hervorragenden Infrastruktur und der unmittelbaren Nähe...
Die Wohnung
Wohnungslage
2. Geschoss
Bezug
nach Absprache
Wohnanlage
Energie & Heizung
Warum sehe ich diese Anzeige? – Du siehst diese Anzeige basierend auf Ihrer Navigation auf unserer Website und den Suchkriterien, die du verwendet hast.
Energieausweistyp
Verbrauchsausweis
Gebäudetyp
Wohngebäude
Baujahr laut Energieausweis
2000
Wesentliche Energieträger
Erdgas E
Gültigkeit
17.09.2018 bis 16.09.2028
Effizienzklasse
A+
Endenergieverbrauch
28,50 kWh/(m²·a)
Weitere Energiedaten
Energieträger
Gas
Heizungsart
Zentralheizung
Details
Objektbeschreibung
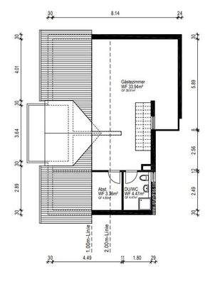
Diese großzügige und lichtdurchflutete 3-Zimmer-Maisonettewohnung mit ca. 82 m² Wohnfläche überzeugt durch ihren besonderen Grundriss, hochwertige Ausstattung und ein angenehmes Wohnambiente. Die Wohnung befindet sich in einem sehr gepflegten Wohnhaus und wird derzeit von der Eigentümerin selbst bewohnt.
Wohnbereiche...
Weitere Informationen
Stichworte
Serviceleistungen: Hausmeister
Sonstiges: frei werdend
Anbieter der Immobilie
Herr Tim Albietz
Dein Ansprechpartner
Kontaktiere den Anbieter schriftlich, es ist keine Telefonnummer hinterlegt.
Online-ID: 2ncnp5n
Finde Angebote wie dieses
Hier geht es zu unserem Impressum, den Allgemeinen Geschäftsbedingungen, den Hinweisen zum Datenschutz und nutzungsbasierter Online-Werbung.