
Nicolai Schneider Immobilien
004 ···
Nr. anzeigenPreise & Kosten
Provision für Käufer
2,975% inkl. MwSt.
Lage
Die Immobilie befindet sich in ruhiger und bevorzugter Wohnlage in Giengen an der Brenz. Die ca. 20.000 Einwohner umfassende Große Kreisstadt Giengen an der Brenz befindet sich im Landkreis Heidenheim und grenzt an den bayrischen Landkreis Dillingen an. Die Stadt, ist nicht zuletzt aufgrund der dort ansässigen und weltweit...
Das Haus
Kategorie
Einfamilienhaus
Baujahr
2020
Bezug
nach Vereinbarung
Energie & Heizung
Warum sehe ich diese Anzeige? – Du siehst diese Anzeige basierend auf Ihrer Navigation auf unserer Website und den Suchkriterien, die du verwendet hast.
Energieausweistyp
Verbrauchsausweis
Gebäudetyp
Wohngebäude
Baujahr laut Energieausweis
2020
Wesentliche Energieträger
PELLET
Gültigkeit
bis 29.09.2035
Effizienzklasse
A
Endenergieverbrauch
45,00 kWh/(m²·a)
Weitere Energiedaten
Energieträger
Pellets
Heizungsart
Fußbodenheizung
Details
Objektbeschreibung
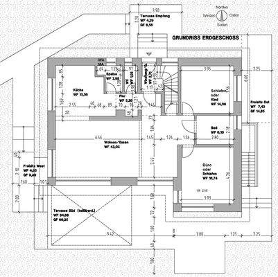
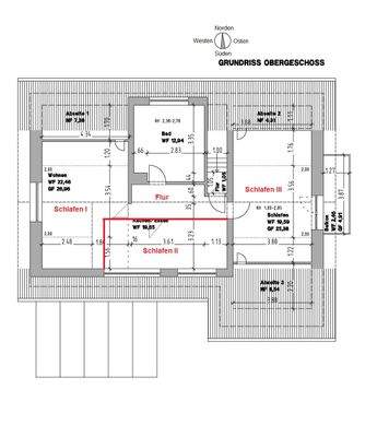
Dieses freistehende Haus auf sonnigem Südwest-Grund befindet sich in sehr ruhiger und bester Wohnlage von Giengen an der Brenz und bietet als Besonderheit die Möglichkeit der Nutzung als Einfamilienhaus mit 5 Schlafzimmern und zusätzlicher Einliegerwohnung. Dies ermöglicht die Nutzung als Mehrgenerationenhaus oder zur...
Ausstattung
Das Haus wurde aus einem Haus aus den 1970'er Jahren entwickelt, allerdings ist davon nichts mehr zu sehen, denn es wurde komplett und von Grund auf zurückgebaut und dann kernsaniert und wieder neu aufgebaut. Somit ist bis auf das Mauerwerk, was rundum dick gedämmt wurde mit einem Vollwärmeschutz, alles neu, insbesondere auch...
Preisinformation
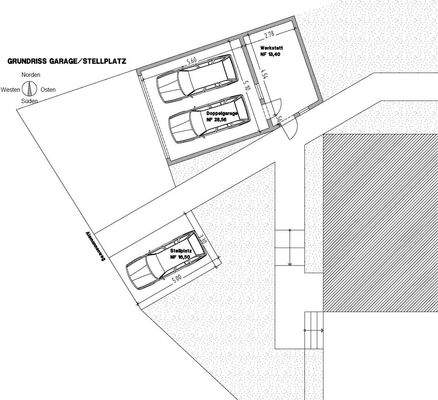
1 Stellplatz
2 Garagenstellplätze
Weitere Informationen
Stichworte
Anzahl der Schlafzimmer: 6, Anzahl der Badezimmer: 3, Anzahl der separaten WCs: 1, Anzahl Balkone: 1, Anzahl Terrassen: 2, 2 Etagen
Sonstiges/Wohnen: Einliegerwohnung
Anbieter der Immobilie
Online-ID: 2ncgj5k
Referenznummer: 2503
Finde Angebote wie dieses
Hier geht es zu unserem Impressum, den Allgemeinen Geschäftsbedingungen, den Hinweisen zum Datenschutz und nutzungsbasierter Online-Werbung.