

KHC Bauträger GmbH
Frau Janet Schrepel
037 ···
Nr. anzeigenPreise & Kosten
Provision für Käufer
provisionsfrei
Lage
Das Neubaugebiet befindet sich zentrumsnah östlich der Zwickauer Mulde. Die direkte Nachbarschaft besteht aus Wohngebäuden und Gärten.
Eine große Auswahl an Einkaufsmöglichkeiten, eine Straßenbahnanbindung, Ärztehäuser und Freizeiteinrichtungen befinden sich vor Ort. Die Anbindung an die B93 Richtung A4 und A72 ist nur...
Das Haus
Kategorie
Einfamilienhaus
Baujahr
2024
Energie & Heizung
Warum sehe ich diese Anzeige? – Du siehst diese Anzeige basierend auf Ihrer Navigation auf unserer Website und den Suchkriterien, die du verwendet hast.
Energieausweistyp
Bedarfsausweis
Gebäudetyp
Wohngebäude
Baujahr laut Energieausweis
2024
Wesentliche Energieträger
Strom
Gültigkeit
seit 04.01.2016
Effizienzklasse
A+
Endenergiebedarf
19,71 kWh/(m²·a)
Weitere Energiedaten
Energieträger
Elektro
Heizungsart
Fußbodenheizung, Zentralheizung
Details
Objektbeschreibung
Schon beim Eintreten in diese wundervolle Stadtvilla bezaubert Sie eine fabelhafte Wohlfühlatmosphäre, dank heller, lichtdurchfluteter Räumen. Durch bodentiefe Fenster genießen Sie im großzügig geschnittenen Wohn- und Esszimmer stets einen schönen Blick ins Freie. Die attraktive Wohnküche bietet genügend Platz um mit...
Ausstattung
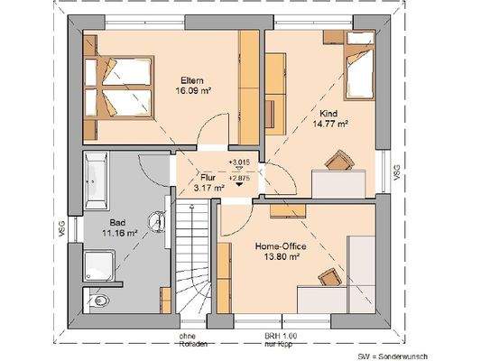
4 Zimmer, offene Küche, Speisekammer, Diele, WC, Flur, Bad, Hauswirtschaftsraum
Das gezeigte Traumhaus im Überblick:
+ Schlüsselfertiges Massivhaus im Sinne der Ausstattungsbeschreibung "Easy"
+ Inklusive Bodenplatte
Beste Markenausstattung in jedem Kern-Haus:
+ Zimmermannsmäßiger Dachstuhl aus...
Weitere Informationen
Sonstiges
Kern-Haus
Kern-Haus baut individuelle und massive Architektenhäuser zu einem attraktiven Preis-Leistungs-Verhältnis - und das bereits mit einer Erfahrung seit 1980. Kern-Haus ist an mehr als 20 Standorten in Deutschland vertreten. Bei Kern-Haus erhalten Sie unter anderem 10 Jahre Gewährleistung auf die...
Anbieter der Immobilie

Online-ID: 2ncfh58
Referenznummer: KH 13_08
Finde Angebote wie dieses
Hier geht es zu unserem Impressum, den Allgemeinen Geschäftsbedingungen, den Hinweisen zum Datenschutz und nutzungsbasierter Online-Werbung.